OngoingActive

GLORY 46 (PHASE-2)

Gautam Buddha Nagar, Uttar Pradesh
15-10-2012
Launch Date
Ongoing
Type
14-04-2021
Completion Date

Overview

Launch Date

Invalid Date

Completion Date

14-04-2021

RERA ID

UPRERAPRJ11594

Basic Details

Project TypeOngoing
Project CategoryResidential
Total area in round figure (Sq.mt.)6670
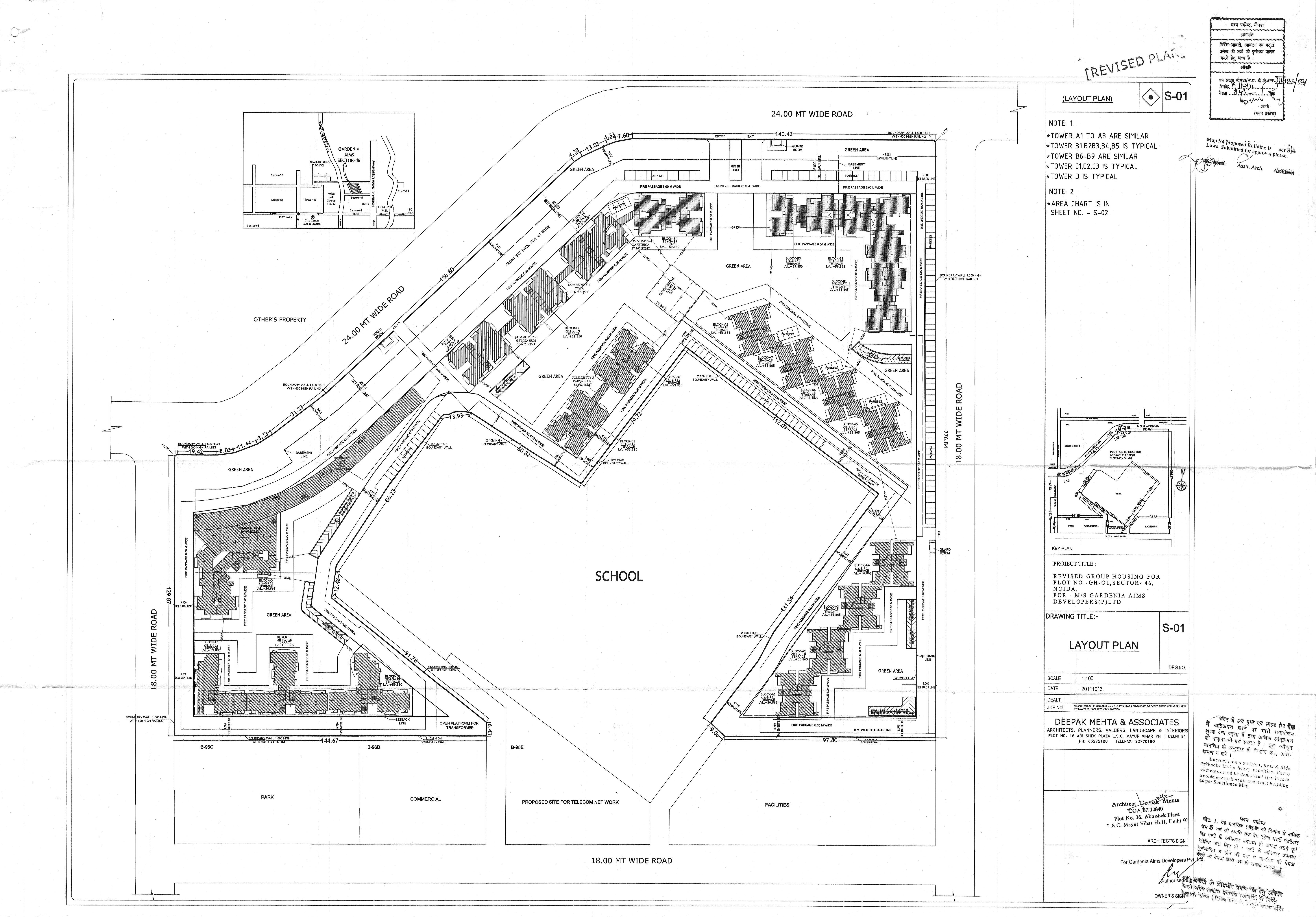
Project NameGLORY 46 (PHASE-2)
Registration Fee (in Rs.)38500
AddressNot specified
Village/Locality/Sector etc.Not specified
StateUttar Pradesh
Project Duration (In month)102
DistrictGautam Buddha Nagar
Original Start Date09-03-2010
TehsilGautam Buddha Nagar
Proposed Start Date15-10-2012
Sanctioning Competent AuthorityNoida Authority
Project Cost (in Lacs)12797
Proposed Completion Date14-04-2021

Location

Latitude

283231

Longitude

772215

Bank Details

Account no.NIL
Name Of Account HolderNIL
Bank NameNIL
Branch AddressNIL
Branch NameNIL
IFSC CodeNIL

Development Works

Demarcation of Plots

COMPLETED AT SITE

Boundary Wall

IN PROGRESS AND AS PER SANCTION AND STATUTORY DETAILS

Road Work

IN PROGRESS AND AS PER SANCTION AND STATUTORY DETAILS

Footpaths

IN PROGRESS AND AS PER SANCTION AND STATUTORY DETAILS

Water Supply Including Drinking Water Facilities

IN PROGRESS AND AS PER SANCTION AND STATUTORY DETAILS

Sewer System

IN PROGRESS AND AS PER SANCTION AND STATUTORY DETAILS

Drain

IN PROGRESS AND AS PER SANCTION AND STATUTORY DETAILS

Parks

IN PROGRESS AND AS PER SANCTION AND STATUTORY DETAILS

Tree Planting

IN PROGRESS AND AS PER SANCTION AND STATUTORY DETAILS

Design For Electric Supply Including Street Lighting

IN PROGRESS AND AS PER SANCTION AND STATUTORY DETAILS

Community Buildings

IN PROGRESS AND AS PER SANCTION AND STATUTORY DETAILS

Treatment and Disposal System of Sewage and Sullage water

IN PROGRESS AND AS PER SANCTION AND STATUTORY DETAILS

Solid Waste Management And Disposal System

IN PROGRESS AND AS PER SANCTION AND STATUTORY DETAILS

Water Conservation System

IN PROGRESS AND AS PER SANCTION AND STATUTORY DETAILS

Energy Management System Including Use of Renewable Energy

IN PROGRESS AND AS PER SANCTION AND STATUTORY DETAILS

Fire Protection And Fire Safety System

IN PROGRESS AND AS PER SANCTION AND STATUTORY DETAILS

Social Infrastructure And Other Public Amenities Including Public Health Services

IN PROGRESS AND AS PER SANCTION AND STATUTORY DETAILS

Emergency Evacuation Services

IN PROGRESS AND AS PER SANCTION AND STATUTORY DETAILS

Other Miscellaneous Work

IN PROGRESS AND AS PER SANCTION AND STATUTORY DETAILS

Documents

Lease Deed

No: 2820 | Date: 26-10-2009

Allotment Letter issued by Competent Authority

No: NOIDA/GHP/GH-2009-(III)/2009/4064 | Date: 03-09-2009

Proforma of Conveyance Deed

Proforma of Completion Certificate(Occupancy)

CA CERTIFICATE

ARCHITECT CERTIFICATE

ENGINEERS CERTIFICATE

Details of Encumbrances

Uploaded: 23-09-2019

Commencement Certificate

Uploaded: 23-09-2019

Other Plan(If Any)

Uploaded: 23-09-2019

Proforma of Application Form

Uploaded: 23-09-2019

Proforma of Allotment Letter

Uploaded: 23-09-2019

Waste Disposal Plan

Uploaded: 23-09-2019

Water Supply Plan

Uploaded: 23-09-2019

Electricity Supply Plan

Uploaded: 23-09-2019

Development Work Plan

Uploaded: 23-09-2019

Affidavit

Uploaded: 23-09-2019

Registry Document In Case of Own Land

Uploaded: 15-08-2017

Sanctioned Layout Plan (Of Entire Project)

Uploaded: 27-12-2017

Authentic copy of Approval of Project

Uploaded: 27-12-2017

Permits

Orignal Permit NoNOIDA/CAP/III-183/581
Orignal Permit Date15-10-2012
Valid Upto15-10-2017
Revalidated Permit No-
Revalidated Permit Date-
Revalidated Permit Valid Upto-
Permit Extendable Upto15-10-2022
End Date15-10-2020
Uploaded Approve LayoutOpen
Uploaded Sanctioned LetterOpen
Uploaded Approved MapOpen
Uploaded Floor Plan Of All TypesOpen
Uploaded Project SpecificationsOpen
Uploaded Sajra DetailNot Specified

Project Team

Contractor Name (if any)Not specified
Contractor AddressNot specified
Architect NameDEEPAK MEHTA
Architect AddressSECOND FLOOR, PLOT NO. 16, ABHISHEK PLZA, L.S.C.,MAYUR VIHAR PH II, DELHI - 110091, INDIA
Architect Licence NumberCA/87/10840
Structural Engineer NameMr.Padam Kumar
Structural Engineer AddressS-203-205,CHETAK COMPLEX, LSC, POCKET B&E,DILSHAD GARDEN, DELHI-110095
Mobile number(Project Co-ordinator)+919718808500

Land Details

AFS

Showing 4 blocks with 153 units

Property Summary

Total Carpet Area

17794.06 m²

191533.48 ft²

Total Units

306

1 different types

Blocks & Floors

4

19 floors across all blocks

Parking

0

0 garages, 0 open

Average unit size:58.15 m²
Balconies:459
Parking ratio:0.00 per unit

Block A5

38 units

Block A6

38 units

Block A7

39 units

Block A8

38 units

Khasra Details

Total Area

51719.00 m²

556698.14 ft²

1 plot
Plot
TypePlot
Khasra/Plot NoGH-01
Area(In Sq. Mt.)51719

Other Details

Contractor Name (if any)Not specified
Contractor AddressNot specified
Architect NameDEEPAK MEHTA
Architect AddressSECOND FLOOR, PLOT NO. 16, ABHISHEK PLZA, L.S.C.,MAYUR VIHAR PH II, DELHI - 110091, INDIA
Architect Licence NumberCA/87/10840
Structural Engineer NameMr.Padam Kumar
Structural Engineer AddressS-203-205,CHETAK COMPLEX, LSC, POCKET B&E,DILSHAD GARDEN, DELHI-110095
Mobile number(Project Co-ordinator)+919718808500
GLORY 46 (PHASE-2) by GARDENIA AIMS DEVELOPERS PRIVATE LIMITED | ReraTracker