OngoingActive

GH-08/75 (PHASE-1) GOLF CITY

Gautam Buddha Nagar, Uttar Pradesh
05-03-2012
Launch Date
Ongoing
Type
05-03-2020
Completion Date

Overview

Launch Date

05-03-2012

Completion Date

05-03-2020

RERA ID

UPRERAPRJ11463

Basic Details

Project TypeOngoing
Project CategoryResidential
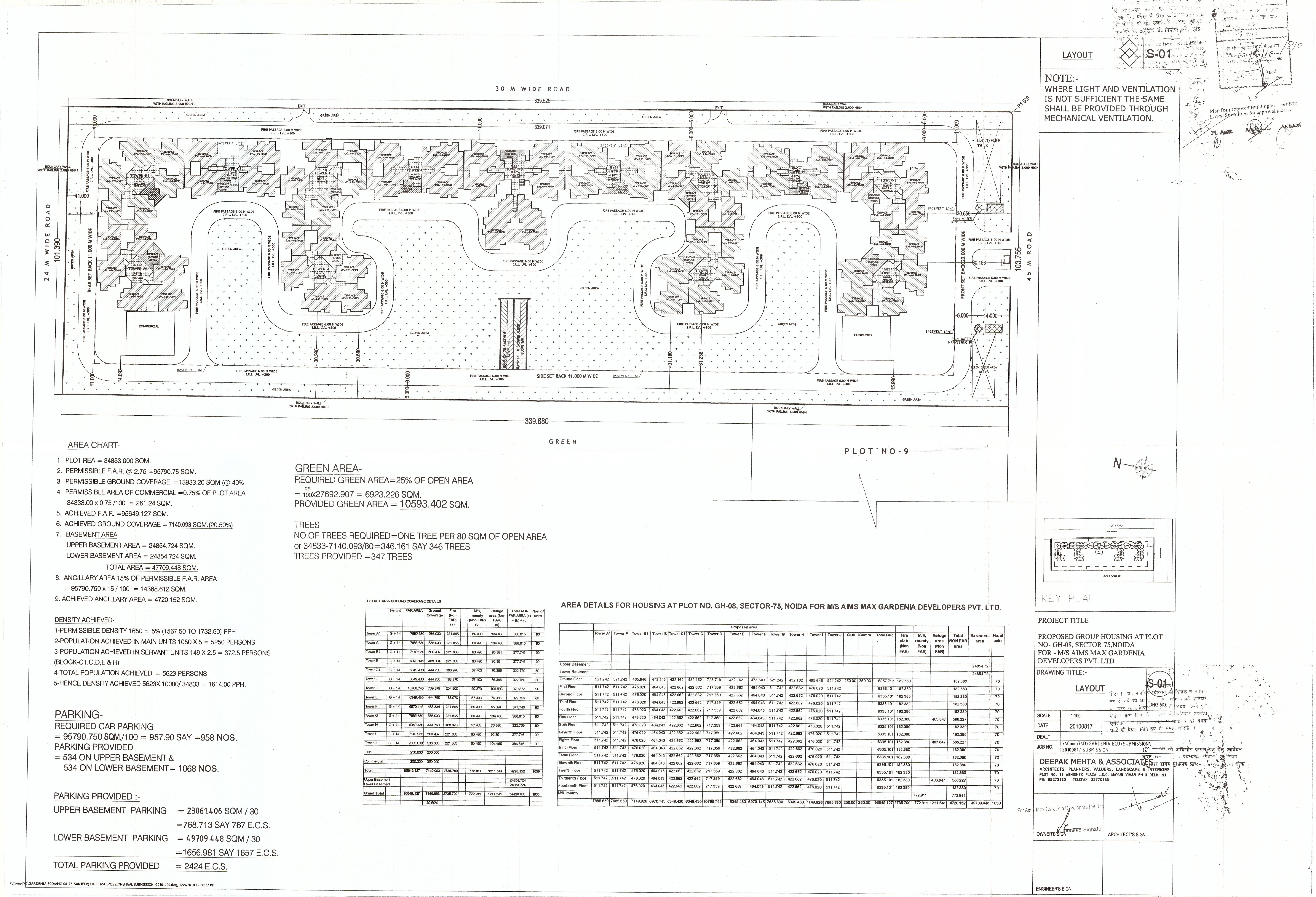
Total area in round figure (Sq.mt.)11864
Project NameGH-08/75 (PHASE-1) GOLF CITY
Registration Fee (in Rs.)64500
AddressNot specified
Village/Locality/Sector etc.Not specified
StateUttar Pradesh
Project Duration (In month)97
DistrictGautam Buddha Nagar
Original Start Date05-03-2012
TehsilGautam Buddha Nagar
Proposed Start Date05-03-2012
Sanctioning Competent AuthorityNoida Authority
Project Cost (in Lacs)18448
Proposed Completion Date05-03-2020

Location

Latitude

283231

Longitude

772215

Bank Details

Account no.628405019771
Name Of Account HolderAIMS MAX GARDENIA DEVELOPERS PRIVATE LIMITED
Bank NameICICI BANK
Branch AddressSECTOR 50 NOIDA
Branch NameICICI BANK SECTOR 50 NOIDA
IFSC Code ICIC0006284

Development Works

Demarcation of Plots

ALREADY COMPLETED AT SITE

Boundary Wall

IN PROGRESS ACCORDING TO SANCTION AND STATUTORY DETAILS

Road Work

IN PROGRESS ACCORDING TO SANCTION AND STATUTORY DETAILS

Footpaths

IN PROGRESS ACCORDING TO SANCTION AND STATUTORY DETAILS

Water Supply Including Drinking Water Facilities

IN PROGRESS ACCORDING TO SANCTION AND STATUTORY DETAILS

Sewer System

IN PROGRESS ACCORDING TO SANCTION AND STATUTORY DETAILS

Drain

IN PROGRESS ACCORDING TO SANCTION AND STATUTORY DETAILS

Parks

IN PROGRESS ACCORDING TO SANCTION AND STATUTORY DETAILS

Tree Planting

IN PROGRESS ACCORDING TO SANCTION AND STATUTORY DETAILS

Design For Electric Supply Including Street Lighting

IN PROGRESS ACCORDING TO SANCTION AND STATUTORY DETAILS

Community Buildings

IN PROGRESS ACCORDING TO SANCTION AND STATUTORY DETAILS

Treatment and Disposal System of Sewage and Sullage water

IN PROGRESS ACCORDING TO SANCTION AND STATUTORY DETAILS

Solid Waste Management And Disposal System

IN PROGRESS ACCORDING TO SANCTION AND STATUTORY DETAILS

Water Conservation System

IN PROGRESS ACCORDING TO SANCTION AND STATUTORY DETAILS

Energy Management System Including Use of Renewable Energy

IN PROGRESS ACCORDING TO SANCTION AND STATUTORY DETAILS

Fire Protection And Fire Safety System

IN PROGRESS ACCORDING TO SANCTION AND STATUTORY DETAILS

Social Infrastructure And Other Public Amenities Including Public Health Services

IN PROGRESS ACCORDING TO SANCTION AND STATUTORY DETAILS

Emergency Evacuation Services

IN PROGRESS ACCORDING TO SANCTION AND STATUTORY DETAILS

Other Miscellaneous Work

IN PROGRESS ACCORDING TO SANCTION AND STATUTORY DETAILS

Documents

Allotment Letter issued by Competent Authority

No: NOIDA/GHP/GH-2009-(V)/2010/918 | Date: 09-06-2010

Details of Encumbrances

Proforma of Conveyance Deed

Proforma of Completion Certificate(Occupancy)

Commencement Certificate

Uploaded: 22-09-2019

Other Plan(If Any)

Uploaded: 22-09-2019

Proforma of Application Form

Uploaded: 22-09-2019

Proforma of Allotment Letter

Uploaded: 22-09-2019

Waste Disposal Plan

Uploaded: 22-09-2019

Water Supply Plan

Uploaded: 22-09-2019

Electricity Supply Plan

Uploaded: 22-09-2019

Development Work Plan

Uploaded: 22-09-2019

Affidavit

Uploaded: 22-09-2019

CA CERTIFICATE

Uploaded: 31-07-2018

ARCHITECT CERTIFICATE

Uploaded: 31-07-2018

ENGINEERS CERTIFICATE

Uploaded: 31-07-2018

Registry Document In Case of Own Land

Uploaded: 15-08-2017

Permits

Orignal Permit NoNOIDA/CAP/III-215/310
Orignal Permit Date03-11-2010
Valid Upto03-11-2012
Revalidated Permit No-
Revalidated Permit Date-
Revalidated Permit Valid Upto-
Permit Extendable Upto05-11-2020
End Date05-03-2020
Uploaded Approve LayoutOpen
Uploaded Sanctioned LetterOpen
Uploaded Approved MapOpen
Uploaded Floor Plan Of All TypesOpen
Uploaded Project SpecificationsOpen
Uploaded Sajra DetailNot Specified

Project Team

Contractor Name (if any)Not specified
Contractor AddressNot specified
Architect NameDEEPAK MEHTA
Architect AddressSECOND FLOOR, PLOT NO. 16, ABHISHEK PLZA, L.S.C.,MAYUR VIHAR PH II, DELHI - 110091, INDIA
Architect Licence NumberCA/87/10840
Structural Engineer NameMr. Sadanand
Structural Engineer Address503, SACHDEVA CORPORATE TOWER, COMMUNITY CENTER PLOT NO-8, SECTOR-8, ROHINI, DELHI-85
Mobile number(Project Co-ordinator)+91931023413

Land Details

AFS

Showing 4 blocks with 165 units

Property Summary

Total Carpet Area

24380.70 m²

262431.42 ft²

Total Units

330

2 different types

Blocks & Floors

4

15 floors across all blocks

Parking

0

0 garages, 0 open

Average unit size:73.88 m²
Balconies:703
Parking ratio:0.00 per unit

Block B

45 units

Block B1

45 units

Block C1

30 units

Block TOWERS (A1 & A)

45 units

Khasra Details

Total Area

34833.00 m²

374938.93 ft²

1 plot
Plot
TypePlot
Khasra/Plot NoGH-08
Area(In Sq. Mt.)34833

Other Details

Contractor Name (if any)Not specified
Contractor AddressNot specified
Architect NameDEEPAK MEHTA
Architect AddressSECOND FLOOR, PLOT NO. 16, ABHISHEK PLZA, L.S.C.,MAYUR VIHAR PH II, DELHI - 110091, INDIA
Architect Licence NumberCA/87/10840
Structural Engineer NameMr. Sadanand
Structural Engineer Address503, SACHDEVA CORPORATE TOWER, COMMUNITY CENTER PLOT NO-8, SECTOR-8, ROHINI, DELHI-85
Mobile number(Project Co-ordinator)+91931023413
GH-08/75 (PHASE-1) GOLF CITY by AIMS MAX GARDENIA DEVELOPERS PRIVATE LIMITED | ReraTracker