OngoingActive

The Core

Ghaziabad, Uttar Pradesh
01-07-2015
Launch Date
Ongoing
Type
29-12-2020
Completion Date

Overview

Launch Date

01-07-2015

Completion Date

29-12-2020

RERA ID

UPRERAPRJ9641

Basic Details

Project TypeOngoing
Project CategoryCommercial
Total area in round figure (Sq.mt.)5279
Project NameThe Core
Registration Fee (in Rs.)63000
AddressNot specified
Village/Locality/Sector etc.Not specified
StateUttar Pradesh
Project Duration (In month)66
DistrictGhaziabad
Original Start Date01-07-2015
TehsilGhaziabad
Proposed Start Date01-07-2015
Sanctioning Competent AuthorityGhaziabad Development Authority
Project Cost (in Lacs)12000
Proposed Completion Date29-12-2020

Location

Latitude

28.3748.2 N

Longitude

77.26.31.2 E

Bank Details

Account no.27170200000944
Name Of Account HolderConcept Capital Infra Projects Private Limited
Bank NameBank of Baroda
Branch AddressCrossing Republik, Ghaziabad
Branch NameCrossing Republik, Ghaziabad
IFSC CodeBARB0CROGHA

Development Works

Demarcation of Plots

there is only one plot no

Boundary Wall

solid brick wall on 3 side gril on front

Road Work

rcc road

Footpaths

0

Water Supply Including Drinking Water Facilities

Central Water Treatment with pvc pipes

Sewer System

complete pvc rcc pipe network with stp

Drain

storm drain with rwh

Parks

Green Area

Tree Planting

YES

Design For Electric Supply Including Street Lighting

yes separate transformer (2000kv) with DG

Community Buildings

Mall for common

Treatment and Disposal System of Sewage and Sullage water

STP-50 KLD

Solid Waste Management And Disposal System

STP

Water Conservation System

RWH SYSTEM & LOW FLOW FILTER

Energy Management System Including Use of Renewable Energy

SOLAR PANEL

Fire Protection And Fire Safety System

YES

Social Infrastructure And Other Public Amenities Including Public Health Services

YES PUBLIC AMENITIES

Emergency Evacuation Services

YES

Other Miscellaneous Work

0

Documents

Registry Document

No: 3695 | Date: 15-06-2005

Details of Encumbrances

Commencement Certificate

Other Plan(If Any)

Proforma of Application Form

Proforma of Allotment Letter

Proforma of Conveyance Deed

Proforma of Completion Certificate(Occupancy)

Waste Disposal Plan

Water Supply Plan

Electricity Supply Plan

Development Work Plan

Affidavit

CA CERTIFICATE

ARCHITECT CERTIFICATE

ENGINEERS CERTIFICATE

Legal Document of Agreement in Case of other Land

Uploaded: 11-08-2017

Authentic copy of Approval of Project

Uploaded: 11-08-2017

Proforma of Application Form

Uploaded: 11-08-2017

Floor plans of all types

Uploaded: 11-08-2017

Floor plans of all types

Uploaded: 11-08-2017

Affidavit

Uploaded: 11-08-2017

Other Plan(If Any)

Uploaded: 11-08-2017

Other Plan(If Any)

Uploaded: 11-08-2017

Other Plan(If Any)

Uploaded: 11-08-2017

Legal Document of Agreement in Case of other Land

Uploaded: 30-01-2018

Permits

Orignal Permit No626/M.P./2014
Orignal Permit Date26-06-2014
Valid Upto25-06-2019
Revalidated Permit No-
Revalidated Permit Date-
Revalidated Permit Valid Upto-
Permit Extendable Upto30-06-2020
End Date30-06-2020
Uploaded Approve LayoutOpen
Uploaded Sanctioned LetterOpen
Uploaded Approved MapOpen
Uploaded Floor Plan Of All TypesOpen
Uploaded Project SpecificationsOpen
Uploaded Sajra DetailNot Specified
Orignal Permit No626/M.P./2014
Orignal Permit Date26-06-2014
Valid Upto25-06-2019
Revalidated Permit No259/MP/2-5/20
Revalidated Permit Date07-09-2020
Revalidated Permit Valid Upto25-06-2022
Permit Extendable Upto25-06-2022
End Date29-12-2020
Uploaded Approve LayoutOpen
Uploaded Sanctioned LetterOpen
Uploaded Approved MapOpen
Uploaded Floor Plan Of All TypesOpen
Uploaded Project SpecificationsOpen
Uploaded Sajra DetailNot Specified
Orignal Permit No626/M.P./2014
Orignal Permit Date25-06-2021
Valid Upto25-06-2021
Revalidated Permit No626/M.P./2014
Revalidated Permit Date25-06-2021
Revalidated Permit Valid Upto31-03-2026
Permit Extendable Upto31-03-2026
End Date02-12-2020
Uploaded Approve LayoutOpen
Uploaded Sanctioned LetterOpen
Uploaded Approved MapOpen
Uploaded Floor Plan Of All TypesOpen
Uploaded Project SpecificationsOpen
Uploaded Sajra DetailNot Specified
Orignal Permit No626/M.P./2014
Orignal Permit Date25-06-2021
Valid Upto25-06-2021
Revalidated Permit No618/LA/ZONE-5/2021
Revalidated Permit Date31-03-2021
Revalidated Permit Valid Upto31-03-2026
Permit Extendable Upto31-03-2026
End Date02-12-2020
Uploaded Approve LayoutOpen
Uploaded Sanctioned LetterOpen
Uploaded Approved MapOpen
Uploaded Floor Plan Of All TypesOpen
Uploaded Project SpecificationsOpen
Uploaded Sajra DetailNot Specified

Project Team

Contractor Name (if any)Everest Industries Limited
Contractor AddressD 206 Sector 63 Noida, 201301
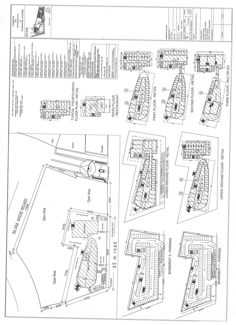
Architect NameNishant Goel
Architect AddressThe Novarch, E-870, C.R. Park, New Delhi
Architect Licence NumberCA/2001/27620
Structural Engineer NameGanesh Juneja
Structural Engineer AddressNoida
Mobile number(Project Co-ordinator)9958110765

Land Details

AFS

Showing 2 blocks with 822 units

Property Summary

Total Carpet Area

170277.00 m²

1832844.60 ft²

Total Units

822

2 different types

Blocks & Floors

2

11 floors across all blocks

Parking

0

0 garages, 0 open

Average unit size:207.15 m²
Balconies:1
Parking ratio:0.00 per unit

Block Galleria

479 units

Block Mall

343 units

Khasra Details

Total Area

0.40 m²

4.33 ft²

4 plots
Khasra
TypeKhasra
Khasra/Plot No1053
Area(In Sq. Mt.)0.1640
Khasra
TypeKhasra
Khasra/Plot No1054/1
Area(In Sq. Mt.)0.0130
Khasra
TypeKhasra
Khasra/Plot No1054/2
Area(In Sq. Mt.)0.2150
Khasra
TypeKhasra
Khasra/Plot No1036/4
Area(In Sq. Mt.)0.0105

Other Details

Contractor Name (if any)Everest Industries Limited
Contractor AddressD 206 Sector 63 Noida, 201301
Architect NameNishant Goel
Architect AddressThe Novarch, E-870, C.R. Park, New Delhi
Architect Licence NumberCA/2001/27620
Structural Engineer NameGanesh Juneja
Structural Engineer AddressNoida
Mobile number(Project Co-ordinator)9958110765
The Core by CONCEPT CAPITAL INFRA PROJECTS PRIVATE LIMITED | ReraTracker