OngoingActive

RAJ EMPIRE ( PHASE-II BLOCK B & C )

Ghaziabad, Uttar Pradesh
19-08-2015
Launch Date
Ongoing
Type
17-02-2025
Completion Date

Overview

Launch Date

Invalid Date

Completion Date

17-02-2025

RERA ID

UPRERAPRJ5589

Basic Details

Project TypeOngoing
Project CategoryResidential
Total area in round figure (Sq.mt.)11774
Project NameRAJ EMPIRE ( PHASE-II BLOCK B & C )
Registration Fee (in Rs.)64000
AddressNot specified
Village/Locality/Sector etc.Not specified
StateUttar Pradesh
Project Duration (In month)114
DistrictGhaziabad
Original Start Date19-08-2015
TehsilGhaziabad
Proposed Start Date19-08-2015
Sanctioning Competent AuthorityGhaziabad Development Authority
Project Cost (in Lacs)9200
Proposed Completion Date17-02-2025

Location

Latitude

28,42,35 N

Longitude

77,25,05 E

Bank Details

Account no.006511024025
Name Of Account HolderJAVIN CONSTRUCTION PRIVATE LIMITED
Bank NameDENA BANK
Branch AddressG-35,CONNAUGHT CIRCUS,NEW DELHI-110001
Branch NameCONNAUGHT CIRCUS,NEW DELHI-110001
IFSC CodeBKDN0710065

Development Works

Demarcation of Plots

EAST- OTHER LAND,WEST-ROAD 12 MTR & 24 MTR WIDE,NORTH-A BLOCK,SOUTH-OTHER LAND/OTHER PROJECT

Boundary Wall

NOT YET STARTED

Road Work

NOT YET STARTED

Footpaths

NOT YET STARTED

Water Supply Including Drinking Water Facilities

NOT YET STARTED

Sewer System

NOT YET STARTED

Drain

NOT YET STARTED

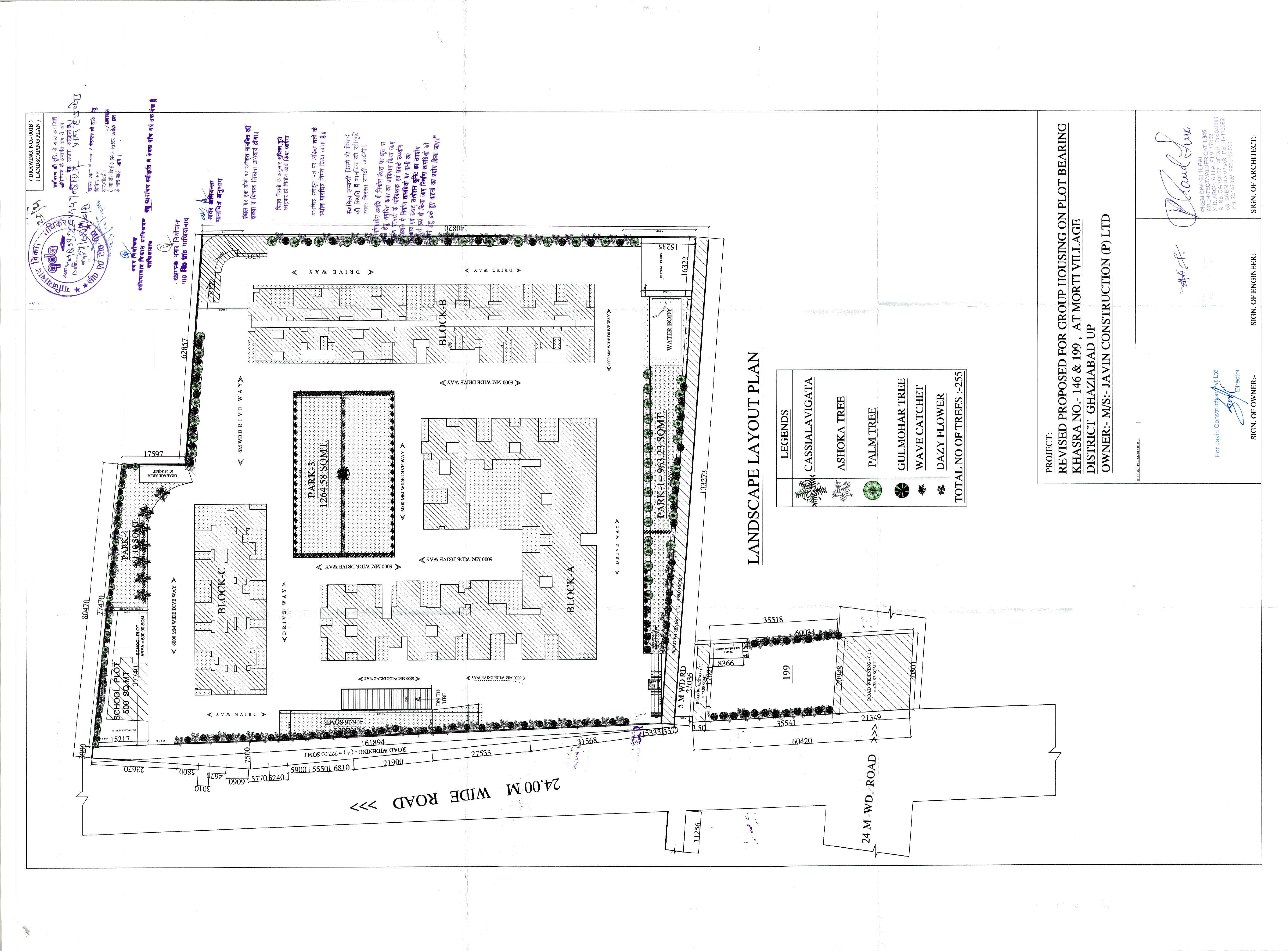
Parks

NOT YET STARTED

Tree Planting

NOT YET STARTED

Design For Electric Supply Including Street Lighting

NOT YET STARTED

Community Buildings

N.A

Treatment and Disposal System of Sewage and Sullage water

NOT YET STARTED

Solid Waste Management And Disposal System

NOT YET STARTED

Water Conservation System

NOT YET STARTED

Energy Management System Including Use of Renewable Energy

N.A

Fire Protection And Fire Safety System

NOT YET STARTED

Social Infrastructure And Other Public Amenities Including Public Health Services

N.A

Emergency Evacuation Services

NOT YET STARTED

Other Miscellaneous Work

NOT YET STARTED

Documents

Registry Document

No: 4079 | Date: 20-05-2010

Registry Document

No: 3803 | Date: 11-05-2010

Other Plan(If Any)

Uploaded: 05-07-2018

Other

Uploaded: 12-12-2022

Legal Document of Agreement in Case of other Land

Uploaded: 24-10-2017

Legal Document of Agreement in Case of other Land

Uploaded: 24-10-2017

Legal Document of Agreement in Case of other Land

Uploaded: 24-10-2017

Legal Document of Agreement in Case of other Land

Uploaded: 24-10-2017

Legal Document of Agreement in Case of other Land

Uploaded: 24-10-2017

Details of Encumbrances

Uploaded: 24-10-2017

Authentic copy of Approval of Project

Uploaded: 24-10-2017

Authentic copy of Approval of Project

Uploaded: 24-10-2017

Authentic copy of Approval of Project

Uploaded: 24-10-2017

Authentic copy of Approval of Project

Uploaded: 24-10-2017

Authentic copy of Approval of Project

Uploaded: 24-10-2017

Authentic copy of Approval of Project

Uploaded: 24-10-2017

Authentic copy of Approval of Project

Uploaded: 24-10-2017

Authentic copy of Approval of Project

Uploaded: 24-10-2017

Authentic copy of Approval of Project

Uploaded: 24-10-2017

Authentic copy of Approval of Project

Uploaded: 24-10-2017

Authentic copy of Approval of Project

Uploaded: 24-10-2017

Authentic copy of Approval of Project

Uploaded: 24-10-2017

Authentic copy of Approval of Project

Uploaded: 24-10-2017

Sanctioned Layout Plan (Of Entire Project)

Uploaded: 24-10-2017

Sanctioned Building/ Block Plan (Add Plans for All Buildings or Blocks)

Uploaded: 24-10-2017

Sanctioned Building/ Block Plan (Add Plans for All Buildings or Blocks)

Uploaded: 24-10-2017

Sanctioned Building/ Block Plan (Add Plans for All Buildings or Blocks)

Uploaded: 24-10-2017

Sanctioned Building/ Block Plan (Add Plans for All Buildings or Blocks)

Uploaded: 24-10-2017

Sanctioned Building/ Block Plan (Add Plans for All Buildings or Blocks)

Uploaded: 24-10-2017

Sanctioned Building/ Block Plan (Add Plans for All Buildings or Blocks)

Uploaded: 24-10-2017

Sanctioned Building/ Block Plan (Add Plans for All Buildings or Blocks)

Uploaded: 24-10-2017

Sanctioned Building/ Block Plan (Add Plans for All Buildings or Blocks)

Uploaded: 24-10-2017

Sanctioned Building/ Block Plan (Add Plans for All Buildings or Blocks)

Uploaded: 24-10-2017

Sanctioned Building/ Block Plan (Add Plans for All Buildings or Blocks)

Uploaded: 24-10-2017

Sanctioned Building/ Block Plan (Add Plans for All Buildings or Blocks)

Uploaded: 24-10-2017

Commencement Certificate

Uploaded: 24-10-2017

Commencement Certificate

Uploaded: 24-10-2017

Floor plans of all types

Uploaded: 24-10-2017

Floor plans of all types

Uploaded: 24-10-2017

Floor plans of all types

Uploaded: 24-10-2017

Floor plans of all types

Uploaded: 24-10-2017

Proforma of Application Form

Uploaded: 24-10-2017

Proforma of Allotment Letter

Uploaded: 24-10-2017

Proforma of Conveyance Deed

Uploaded: 24-10-2017

Affidavit

Uploaded: 24-10-2017

Permits

Orignal Permit No504/ZONE-1/14-15
Orignal Permit Date19-08-2015
Valid Upto18-08-2020
Revalidated Permit NoMAP20180322144708127
Revalidated Permit Date23-10-2018
Revalidated Permit Valid Upto18-08-2023
Permit Extendable Upto18-08-2023
End Date18-08-2023
Uploaded Approve LayoutOpen
Uploaded Sanctioned LetterOpen
Uploaded Approved MapOpen
Uploaded Floor Plan Of All TypesOpen
Uploaded Project SpecificationsOpen
Uploaded Sajra DetailNot Specified
Orignal Permit No504/ZONE-1/14-15
Orignal Permit Date18-08-2020
Valid Upto18-08-2023
Revalidated Permit No504/ZONE-1/14-15
Revalidated Permit Date18-08-2020
Revalidated Permit Valid Upto23-08-2026
Permit Extendable Upto23-08-2026
End Date17-02-2024
Uploaded Approve LayoutOpen
Uploaded Sanctioned LetterOpen
Uploaded Approved MapOpen
Uploaded Floor Plan Of All TypesOpen
Uploaded Project SpecificationsOpen
Uploaded Sajra DetailNot Specified
Orignal Permit No504/ZONE-1/14-15
Orignal Permit Date18-08-2020
Valid Upto23-08-2023
Revalidated Permit No504/ZONE-1/14-15
Revalidated Permit Date18-08-2020
Revalidated Permit Valid Upto23-08-2026
Permit Extendable Upto23-08-2026
End Date17-02-2024
Uploaded Approve LayoutOpen
Uploaded Sanctioned LetterOpen
Uploaded Approved MapOpen
Uploaded Floor Plan Of All TypesOpen
Uploaded Project SpecificationsOpen
Uploaded Sajra DetailNot Specified

Project Team

Contractor Name (if any)A SQUARE-TECH
Contractor AddressB 1-2/8,SECTOR-2,RAJINDER NAGAR,SAHIBABAD.GZB-201005
Architect NamePREM CHAND TURAI
Architect Address53,SRESTHA VIHAR,DELHI-110092
Architect Licence NumberCA/75/157
Structural Engineer NameSANJAY JAYASWAL
Structural Engineer Address11/165,VASUNDHARA,GHAZIABAD-
Mobile number(Project Co-ordinator)9810817862

Land Details

AFS

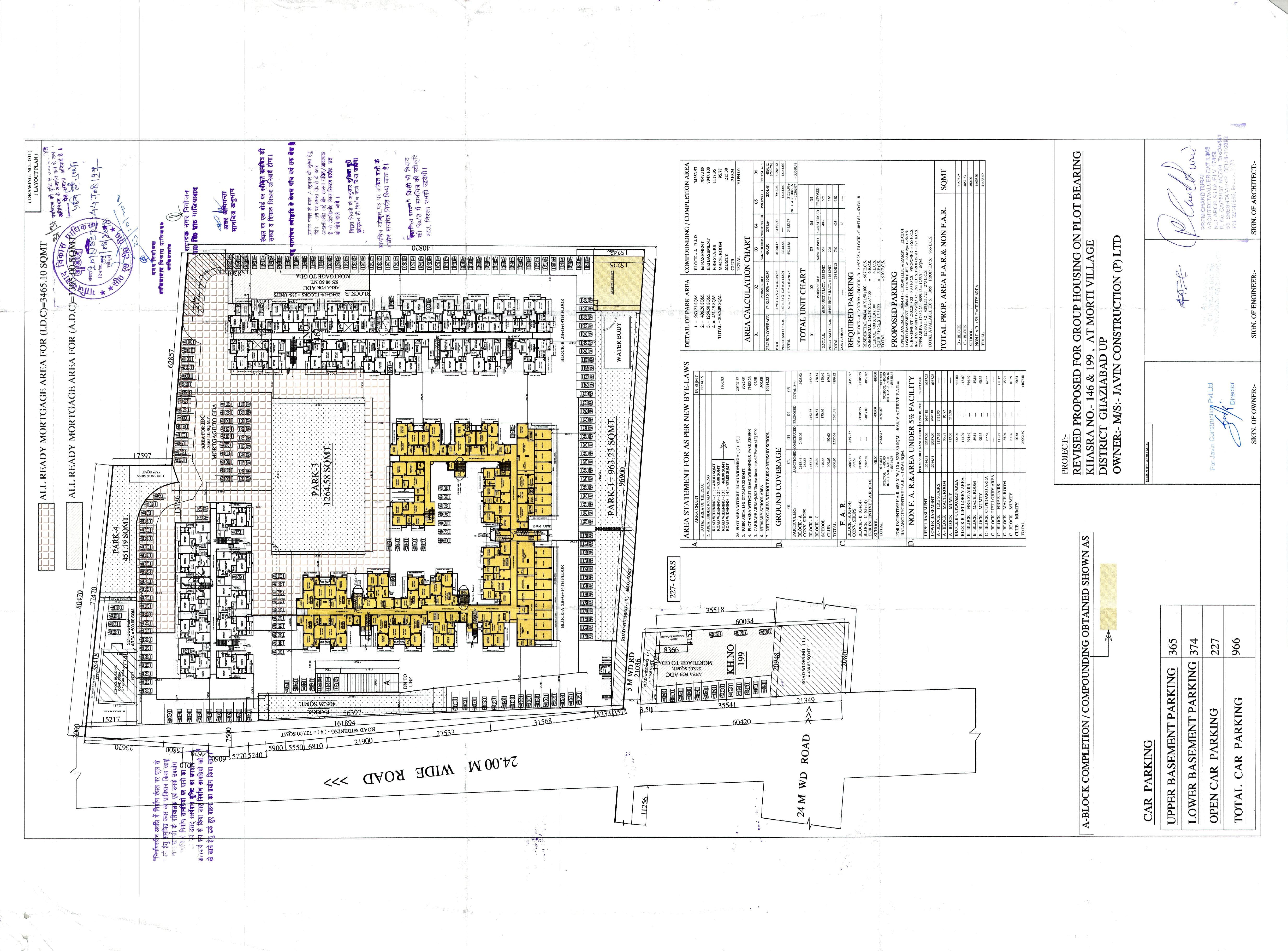
Showing 2 blocks with 192 units

Property Summary

Total Carpet Area

20271.12 m²

218196.31 ft²

Total Units

361

3 different types

Blocks & Floors

2

17 floors across all blocks

Parking

0

0 garages, 0 open

Average unit size:56.15 m²
Balconies:376
Parking ratio:0.00 per unit

Block C

10 units

Block B

182 units

Khasra Details

Total Area

22274.15 m²

239756.72 ft²

2 plots
Khasra
TypeKhasra
Khasra/Plot No146
Area(In Sq. Mt.)21020
Khasra
TypeKhasra
Khasra/Plot No199
Area(In Sq. Mt.)1254.15

Other Details

Contractor Name (if any)A SQUARE-TECH
Contractor AddressB 1-2/8,SECTOR-2,RAJINDER NAGAR,SAHIBABAD.GZB-201005
Architect NamePREM CHAND TURAI
Architect Address53,SRESTHA VIHAR,DELHI-110092
Architect Licence NumberCA/75/157
Structural Engineer NameSANJAY JAYASWAL
Structural Engineer Address11/165,VASUNDHARA,GHAZIABAD-
Mobile number(Project Co-ordinator)9810817862
RAJ EMPIRE ( PHASE-II BLOCK B & C ) by JAVIN CONSTRUCTION PRIVATE LIMITED | ReraTracker