NewActive

VRINDAVAN HEIGHT

Agra, Uttar Pradesh
29-06-2017
RERA Received Date
New
Type
28-12-2021
Completion Date

Overview

RERA Received Date

29-06-2017

Completion Date

28-12-2021

RERA ID

UPRERAPRJ14083

Location

Latitude

27.1767

Longitude

78.0081

Basic Details

Project TypeNew
Project CategoryResidential
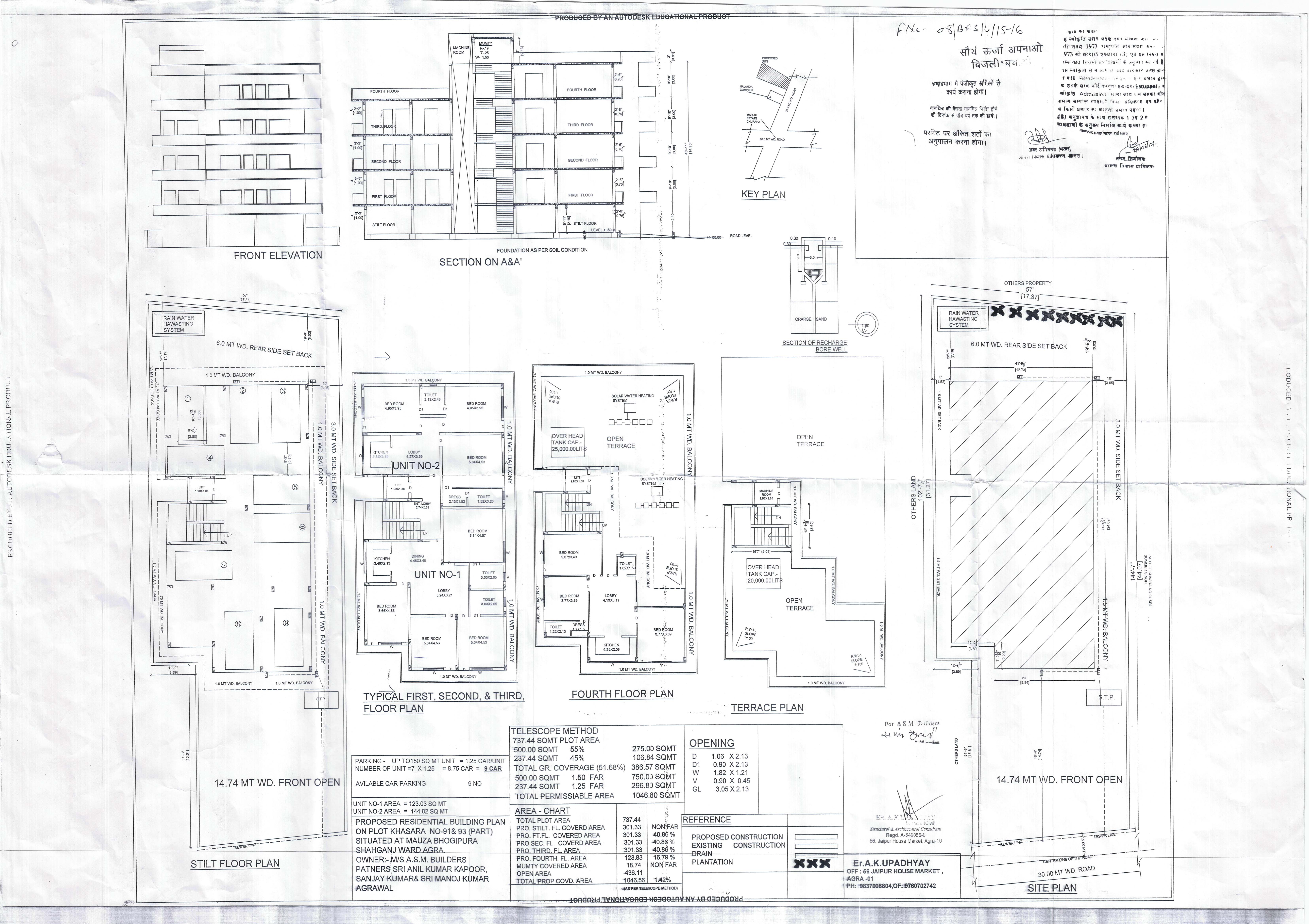
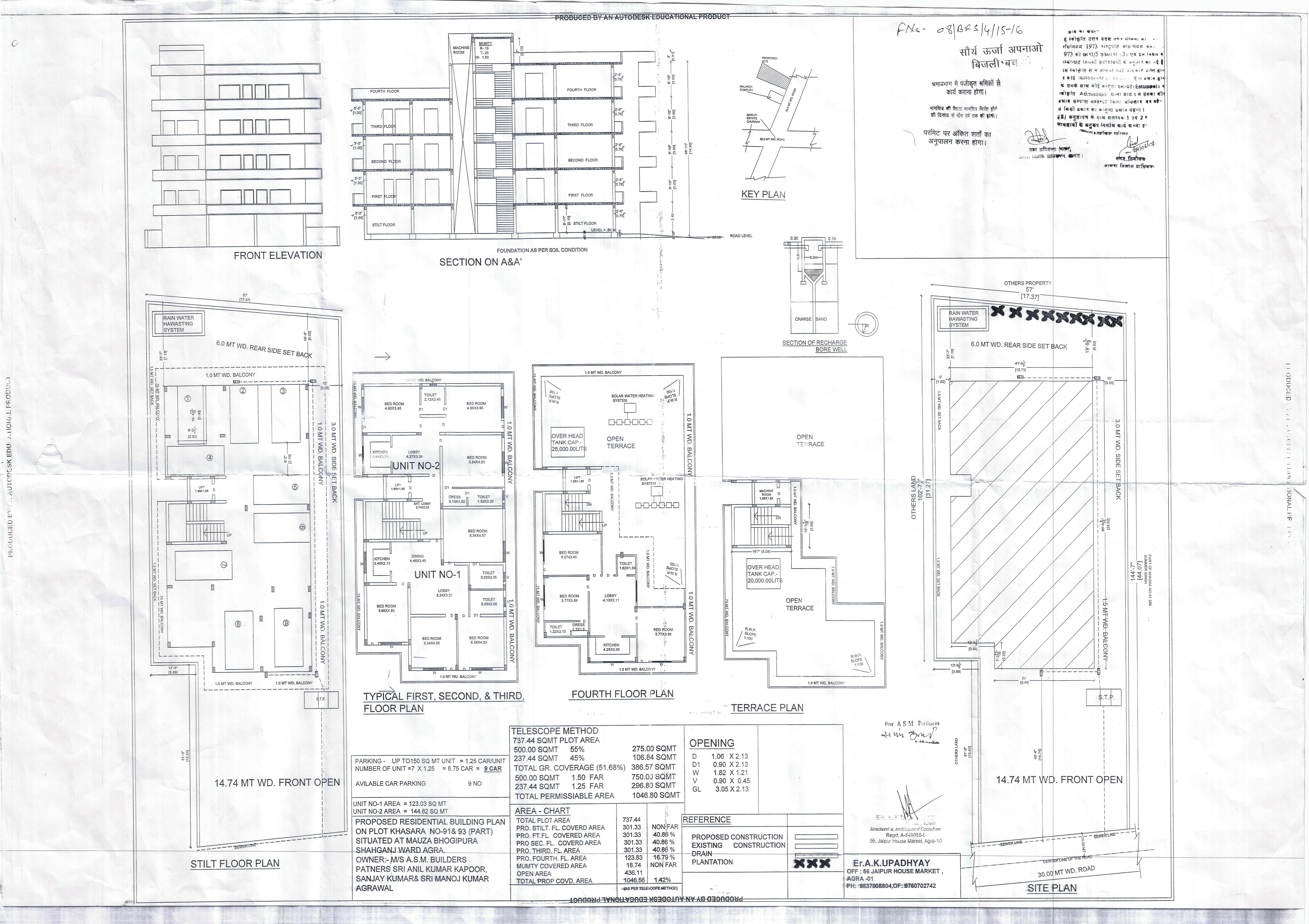
Total area in round figure (Sq.mt.)1047
Project NameVRINDAVAN HEIGHT
Registration Fee (in Rs.)10500
AddressNot specified
Village/Locality/Sector etc.Not specified
StateUttar Pradesh
Project Duration (In month)54
DistrictAgra
Original Start Date-
TehsilAgra
Proposed Start Date29-06-2017
Sanctioning Competent AuthorityAgra Development Authority
Project Cost (in Lacs)30000000
Proposed Completion Date28-12-2021

Bank Details

Account no.03831011001574
Name Of Account HolderASM BUILDERS
Bank NameOriental Bank of Commerce
Branch AddressJAIPUR HOUSE
Branch NameJAIPUR HOUSE, LOHA MANDI, AGRA
IFSC CodeORBC0100383

Development Works

Demarcation of Plots

DONE

Boundary Wall

WORK IN PROGRSS

Road Work

NOT APPLICABLE

Footpaths

NOT APPLICABLE

Water Supply Including Drinking Water Facilities

WORK IN PROGRESS

Sewer System

WORK IN PROGRESS

Drain

WORK IN PROGRESS

Parks

NOT APPLICABLE

Tree Planting

TO BE DONE

Design For Electric Supply Including Street Lighting

NOT APPLICABLE

Community Buildings

NOT APPLICABLE

Treatment and Disposal System of Sewage and Sullage water

WORK IN PROGRESS

Solid Waste Management And Disposal System

NOT APPLICABLE

Water Conservation System

TO BE DONE

Energy Management System Including Use of Renewable Energy

NOT APPLICABLE

Fire Protection And Fire Safety System

NOT APPLICABLE

Social Infrastructure And Other Public Amenities Including Public Health Services

NOT APPLICABLE

Emergency Evacuation Services

NOT APPLICABLE

Other Miscellaneous Work

TO BE DONE AS PER REQUIREMENT

Documents

Sale Deed

No: 11240 | Date: 16-01-2015

Sanctioned Layout Plan (Of Entire Project)

Uploaded: 30-10-2017

Permits

Orignal Permit No08/BFS/04/17-18
Orignal Permit Date29-06-2017
Valid Upto28-06-2022
Revalidated Permit No-
Revalidated Permit Date-
Revalidated Permit Valid Upto-
Permit Extendable Upto28-06-2025
End Date29-06-2021
Uploaded Approve LayoutOpen
Uploaded Sanctioned LetterOpen
Uploaded Approved MapOpen
Uploaded Floor Plan Of All TypesOpen
Uploaded Project SpecificationsOpen
Uploaded Sajra DetailNot Specified

Project Team

Contractor Name (if any)Not specified
Contractor AddressNot specified
Architect NameA.K. UPADHYAY
Architect Address56,JAIPUR HOUSE MARKET,AGRA
Architect Licence NumberA-549085-6
Structural Engineer NameA.K. UPADHYAY
Structural Engineer Address56,JAIPUR HOUSE MARKET,AGRA
Mobile number(Project Co-ordinator)9837008804

Land Details

AFS

Showing 1 blocks with 7 units

Property Summary

Total Carpet Area

869.92

9363.73 ft²

Total Units

7

2 different types

Blocks & Floors

1

4 floors across all blocks

Parking

0

0 garages, 0 open

Average unit size:124.27
Balconies:24
Parking ratio:0.00 per unit

Block 1

7 units

Khasra Details

Total Area

737.44

7937.73 ft²

1 plot
Khasra
TypeKhasra
Khasra/Plot No91 & 93(PART)
Area(In Sq. Mt.)737.44

Other Details

Contractor Name (if any)Not specified
Contractor AddressNot specified
Architect NameA.K. UPADHYAY
Architect Address56,JAIPUR HOUSE MARKET,AGRA
Architect Licence NumberA-549085-6
Structural Engineer NameA.K. UPADHYAY
Structural Engineer Address56,JAIPUR HOUSE MARKET,AGRA
Mobile number(Project Co-ordinator)9837008804
VRINDAVAN HEIGHT by ASM BUILDERS | ReraTracker