ONGOINGActive

TULIP VIOLET-II

GURUGRAM, GURGAON
22-02-2020
Launch Date
ONGOING
Type
2020-12-31
Completion Date

Overview

Launch Date

22-02-2020

Completion Date

2020-12-31

RERA ID

RERA-GRG-649-2020

Basic Details

Project NameTULIP VIOLET-II
Project IDRERA-GRG-649-2020
Project TypeONGOING
Applicant TypeCompany
Submission Date22-02-2020 07:06:14 AM
Builder NameTULIP INFRATECH PVT. LTD.
CINU70101DL2005PTC144086
PANXXXX755E
Emailinfo@tulipgroup.in
Websitehttp://tulipgroup.in
Phone (Mobile)9811065104
Phone (Landline)0124441777
Registered Address76 G, SECTOR 18, GURUGRAM, HARYANA
Project AddressSECTOR 69 & 70, GURUGRAM, HARYANA
DistrictGURUGRAM
TehsilGURGAON

Bank Details

Bank NamePNB, ECE HOUSE, 26 A, KG MARG, CP, NEW DELHI-110001
Account Number1120002102315547
IFSC CodePUNB0112000
MICR Code110024043
Branch Code1120

Account Related Information

Annex copy of the balance sheet of last 3 yearsYes
In case of on-going projects,cash flow statement since start of the project up-to-date in folder D.Total receipt of funds, sources of funds and deployment of funds should be stated in tabulated form.No
Name and address of the person/persons who would ordinarily be operating the account (Change at any time must be intimated to the Authority)Mr. Atul Rai Tulip Infratech Pvt Ltd, 76 G, Sector 18, Gurugram, Haryana
Attach certificate issued by a Chartered Accountant that the applicant has not defaulted in its debt liabilities in the past five years in folder D. (In case of default, give details)NA

Development Details

Land Area8.44 (Sqr/mtrs)
Proposed FAR169.26
Permissible FAR175
Total Licensed Land25.44 (Sqr/mtrs)

Land Usage

PLOTS TO BE SOLD0
LAND AREA TO BE USED FOR CONSTRUCTION OF APARTMENTS12342.98
CONSTRUCTION OF ROADS12178.105
PAVEMENTS12178.105
PARKS AND PLAYGROUNDS15688.93
GREEN BELTS15688.93
VEHICLE PARKINGS12650
ELECTRICITY SUB-STATION300
CLUB HOUSE329.55
SEWAGE AND SOLID WASTE TREATMENT FACILITY825.1
AREA TO BE LEFT FOR TRANSFERRING TO THE GOVERNMENT FOR COMMUNITY SERVICES0
ANY OTHER0
Total82181.7

Cost Details

Land Cost0 Lakhs
Other Cost0 Lakhs
Estimated Project Cost1450000000 Lakhs
Estimated Infrastructure Cost0 Lakhs
Estimated Apartment Construction Cost0 Lakhs

Documents

COPY OF LICENSE ALONG WITH SCHEDULE OF LAND

Uploaded on: 22-02-2020

DEMARCATION PLAN

Uploaded on: 22-02-2020

DOCUMENTS RELATING TO THE ENTRY OF LICENSE AND COLLABORATION AGREEMENT IN THE REVENUE RECORD

Uploaded on: 22-02-2020

CASH FLOW STATEMENT OF THE PROPOSED PROJECT

Uploaded on: 22-02-2020

IN CASE OF PLOTTED COLONY, THE LATEST LAYOUT PLAN

Uploaded on: 22-02-2020

NON DEFAULT CERTIFICATE FROM A CHARTERED ACCOUNTANT

Uploaded on: 22-02-2020

A COMPLETE SET OF THE LAST APPROVED BUILDING PLANS

Uploaded on: 22-02-2020

CERTIFICATE FROM A CHARTERED ACCOUNTANT CERTIFYING THAT THE INFORMSTION PROVIDED BY THE APPLICANT IN FORM REP-1-C-X IS CORRECT AS PER THE BOOKS OF ACCOUNTS/ BALANCE SHEET OF THE APPLICANT

Uploaded on: 22-02-2020

DECLARATION SUPPORTED BY AFFIDAVIT DULY SIGNED BY THE PROMOTER TO BE ENCLOSED.

Uploaded on: 22-02-2020

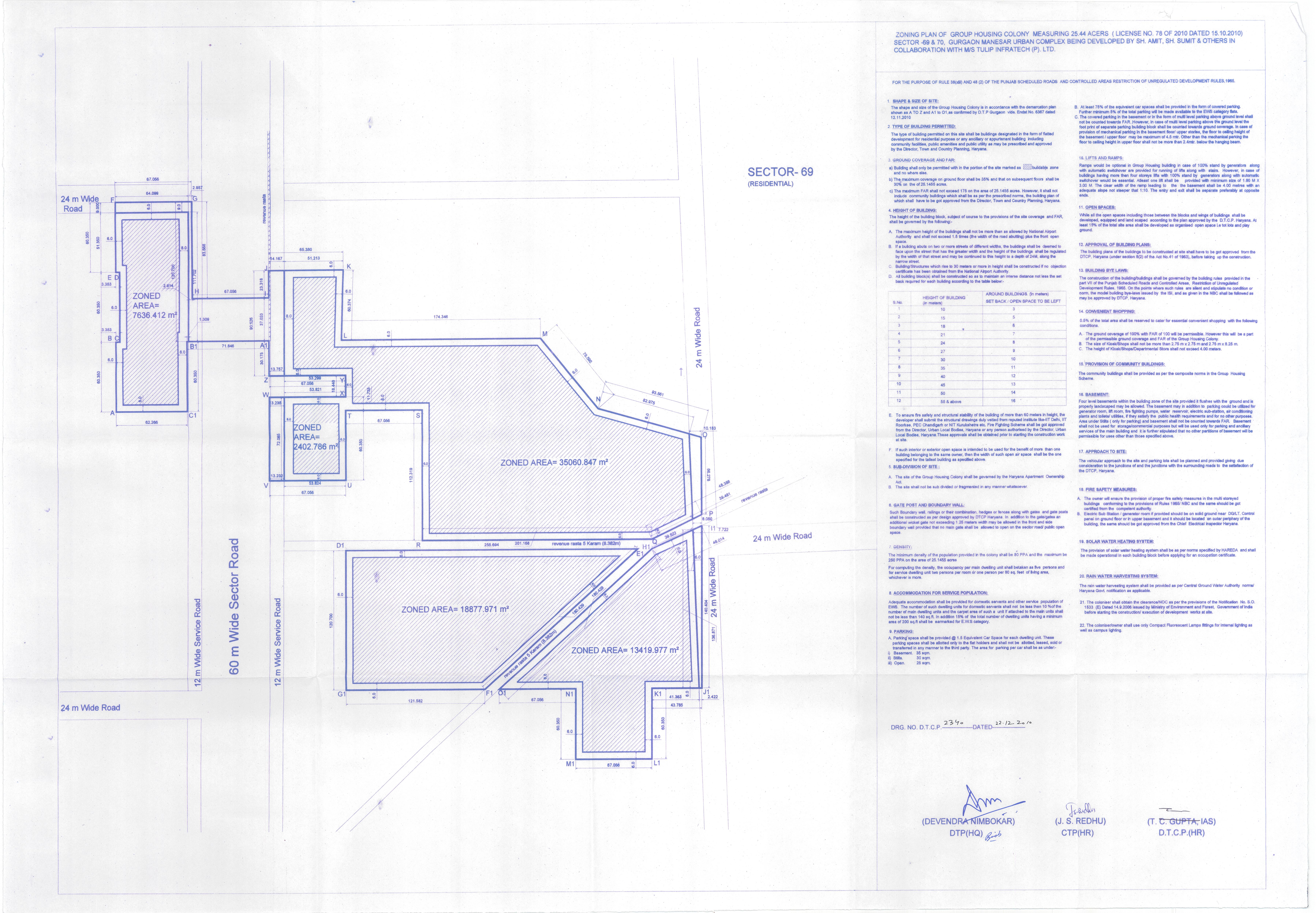
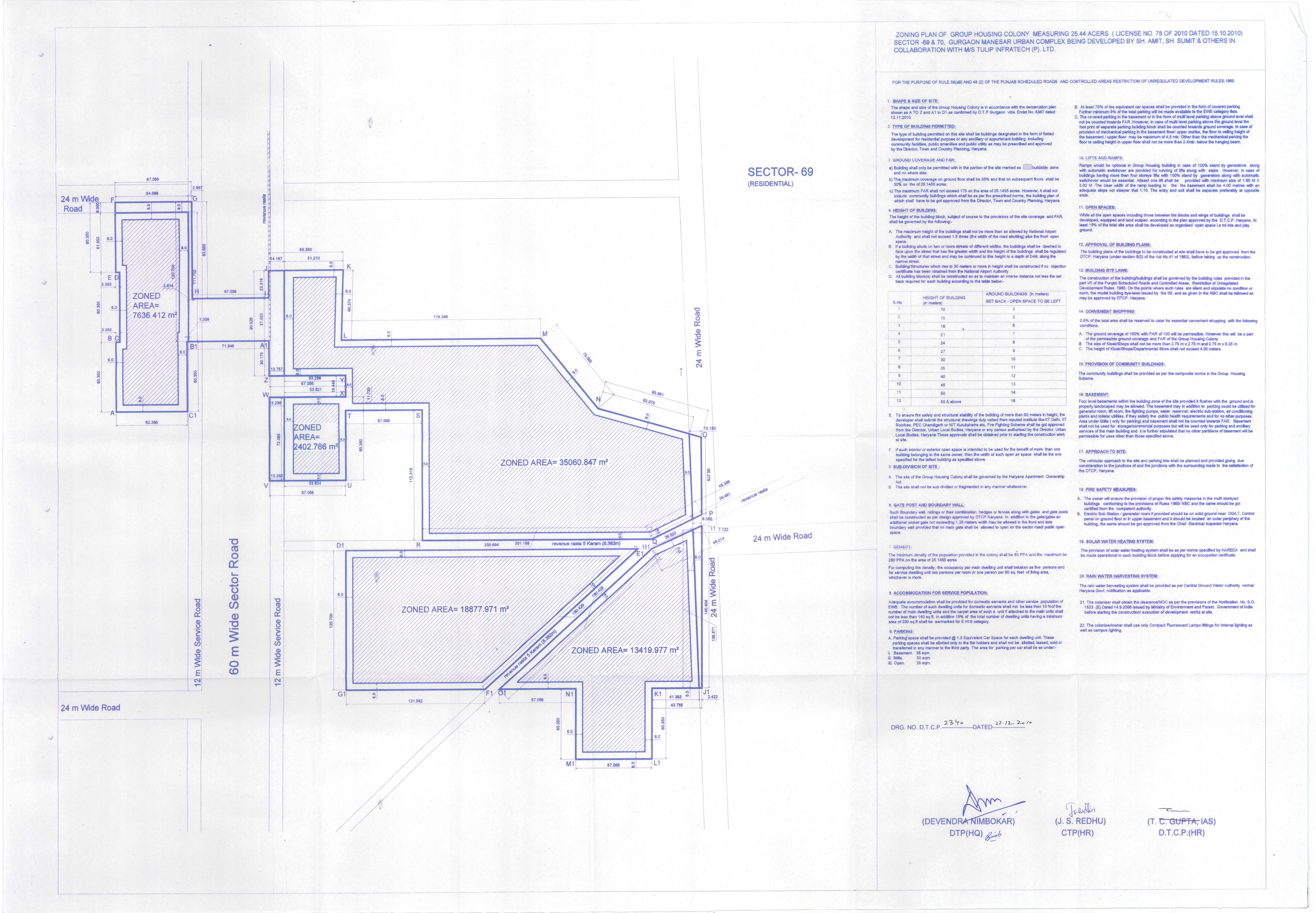
ZONING PLAN

Uploaded on: 22-02-2020

IN CASE OF GROUP HOUSING/ COMMERCIAL SITES, A COPY OF THE APPROVED SITE PLAN

Uploaded on: 22-02-2020

SERVICE PLANS SHOWING THE SERVICES ON THE LAYOUT PLAN

Uploaded on: 22-02-2020

Statutory Approvals

SITE PLAN LAYOUTDate: 11-03-2015Status: ALREADY BEEN OBTAINED
Lay out PlanApproved: Yes
Demarcation PlanApproved: Yes
Zoning PlanApproved: Yes
Building PlanApproved: Yes
Site PlanApproved: Yes
Floor PlanApproved: Yes
Apartment PlansApproved: Yes
Elevation SectionApproved: Yes
Detail of Permissible FARApproved: Yes
Detail of covered area achieved FARApproved: Yes
ROADS AND PAVEMENT PLANApproved: Yes
ELECTRICITY SUPPLY PLANApproved: Yes
WATER SUPPLY PLANApproved: Yes
SEWERAGE AND GARBAGE DISPOSAL PLANApproved: Yes
STROM WATER DRAINAGEApproved: Yes
10% LAND TO BE TRANSFERRED TO THE GOVT. FOR COMMUNITY FACILITYApproved: Yes
STREET LIGHTING PLANApproved: Yes
PARKING PLANApproved: Yes

Facilities

INTERNAL ROADS AND PAVEMENTSYET TO BE PREPARED
WATER SUPPLY SYSTEMYET TO BE PREPARED
STORM WATER DRAINAGEYET TO BE PREPARED
ELECTRICITY SUPPLY SYSTEMYET TO BE PREPARED
SEWAGE TREATMENT & GARBAGE DISPOSALYET TO BE PREPARED
STREET LIGHTINGYET TO BE PREPARED
SECURITY AND FIRE FIGHTINGYET TO BE PREPARED
PLAYGROUNDS AND PARKSYET TO BE PREPARED
CLUB HOUSE/COMMUNITY CENTREYET TO BE PREPARED
SHOPPING AREAYET TO BE PREPARED
RENEWABLE ENERGY SYSTEMYET TO BE PREPARED
SCHOOLYET TO BE PREPARED
HOSPITAL/DISPENSARYYET TO BE PREPARED
ANY OTHERYET TO BE PREPARED

NOC

ROADSProvider: HUDAApproval Status: Approved
WATER SUPPLYProvider: HUDAApproval Status: Approved
ELECTRICITYProvider: CHIEF ELECTRICAL INSPECTOR, HARYANAApproval Status: Approved
SEWAGE DISPOSALProvider: HUDAApproval Status: Approved
STORM WATER DRAINAGEProvider: HUDAApproval Status: Approved

Project Team

Authorized Representative

MS KAVIA ANAND
Name
MS KAVIA ANAND
PAN
XXXX277E
Email
environment@tulipinfratech.com
Mobile
9670131008
Landline
01244417777
Address
2701 Block C Sushant Lok Phase 1 Sector 43 Gurugram

Managing Director/CEO

MR PARVEEN JAIN
Name
MR PARVEEN JAIN
PAN
XXXX176L
Email
info@tulipgroup.in
Mobile
9811140707
Landline
01244417777
Address
Khasra No-418 Avenue One Westend Green Rangpuri Delhi-110037

Directors

MR VIPIN JAIN
Name
MR VIPIN JAIN
PAN
XXXX043K
Email
info@tulipgroup.in
Mobile
9811138262
Landline
01244417777
Address
Khasra No.-418 Avenue One Westend Green Rangpuri Delhi-110037
MR  VIKAS JAIN
Name
MR VIKAS JAIN
PAN
XXXX788Q
Email
info@tulipgroup.in
Mobile
9811065104
Landline
01244417777
Address
Khasra No.-418 Avenue One Westend Green Rangpuri Delhi-110037

Contact Details

Project ContactEmail: info@tulipgroup.inMobile: 9549999636Landline: 01244948700
Project Contact PersonName: RAJENDER SHARMAEmail: info@tulipgroup.inMobile: 9549999636Landline: 01244948700

Land Details

Land Area8.44 (Sqr/mtrs)
Proposed FAR169.26
Permissible FAR175
Total Licensed Land25.44 (Sqr/mtrs)

Land Usage

Land Cost0 Lakhs
Other Cost0 Lakhs
Estimated Project Cost1450000000 Lakhs
Estimated Infrastructure Cost0 Lakhs
Estimated Apartment Construction Cost0 Lakhs

Total Infrastructure Expenditure

ParticularsExpenditure (in Lakhs)
Other0
Shopping area0
Roads & Pavements0
Water Supply System0
Storm Water Drainage0
Parks and Playgrounds0
Electricity Supply System0
Clubhouse/community centres0
Sewerage treatment & garbage disposal0

Other Details

Construction Specifications

FLOORING DETAILS OF VARIOUS PARTS OF HOUSELAMINATED WOODEN FLOORING/ANTI SKID TILES/ VITRIFIED TILES OR EQUIVALENT
WALL FINISHING DETAILSPAINT FINISHES
KITCHEN DETAILSMARBLE/GRANITE COUNTER WITH SS SINK
BATHROOM FITTINGSWHITE SANITARY, CP FITTING AND MIRROR
WOOD WORK ETCNOT APPLICABLE
DOORS AND WINDOS FRAMESUPVC/ HARDWOOD
GLASS WORKNOT APPLICABLE
ELECTRIC FITTINGSSWITCHES ONLY (NO LIGHTS & FIXTURES)
CONDUCTING AND WIRING DETAILSTYPE OF ELECTRICAL WIRES USED: COPPER WIRES
CUPBOARD DETAILSNOT APPLICABLE
WATER STORAGEOVER HEAD TANK
LIFT DETAILS2 NOS, CAPACITY10 & 13 PERSON, KONE
EXTERNAL GLAZINGSNOT APPLICABLE
WINDOWS/GLAZINGSUPVC WINDOWS
DOORSFLUSH DOOR
MAIN DOORSFLUSH DOOR
INTERNAL DOORSFLUSH DOOR
AIR CONDITIONINGNOT APPLICABLE
ELECTRICAL FITTINGSNOT APPLICABLE
CNG PIPE LINENOT APPLICABLE
PROVISION OF WIFI AND BROADBAND FACILITYNOT APPLICABLE
EXTERNAL FINISHING/COLOUR SCHEMEPAINT FINISHES
INTERNAL FINISHINGPAINT FINISHES

Unit-wise Specifications

TOILET
FLOORCERAMIC TILES
WALLSCERAMIC TILES
CEILINGPAINT FINISHES
COUNTERSNOT APPLICABLE
SANITARY WARE/CP FITTINGSWHITE EWC AND BASIN AND C.P. FITTINGS
FIXTURESPROVISION FOR HOT AND COLD WATER SUPPLY C P FITTINGS
KITCHEN
FLOORANTI SKID TILES/ VITRIFIED TILES/ CERAMIC TILES
WALLS2’ DEDO ABOVE COUNTER
CEILINGPAINT FINISHES
COUNTERSGRANITE/MARBLE COUNTERS
FIXTURESSTAINLESS STEEL SINK WITH MIXTURE
KITCHEN APPLIANCESNOT APPLICABLE
SIT-OUTS
FLOORNOT APPLICABLE
WALLS & CEILINGNOT APPLICABLE
RAILINGSNOT APPLICABLE
FIXTURESNOT APPLICABLE
BED ROOMS
FLOORVITRIFIED TILES
WALLSPAINT FINISHES
CEILINGPAINT FINISHES
WARDROBESNOT APPLICABLE
MASTER TOILET
FLOORCERAMIC TILES
WALLSCERAMIC TILES
CEILINGPAINT FINISHES
COUNTERSNOT APPLICABLE
SANITARY WARE/CP FITTINGSWHITE EWC AND BASIN AND C.P. FITTINGS
FITTING/FIXTURESPROVISION FOR HOT AND COLD WATER SUPPLY C P FITTINGS
MASTER BEDROOM/DRESSROOM
FLOORLAMINATED WOODEN FLOORING
WALLSPAINT FINISHES
CEILINGPAINT FINISHES
MODULAR WARDROBESNOT APPLICABLE
LIVING/DINING/FOYER/FAMILY LOUNGE
FLOORVITRIFIED TILES
WALLSPAINT FINISHES
CEILINGPAINT FINISHES
UTILITY ROOMS/UTILITY BALCONY/TOILET
FLOORNOT APPLICABLE
WALLS & CEILINGNOT APPLICABLE
TOILETNOT APPLICABLE
BALCONYNOT APPLICABLE

Fee Details

Payment 1
amount:1480000
cheque no:477096
draft date:19-09-2018
payable to:HRERA Gurugram
payee bank:PNB