NewActive

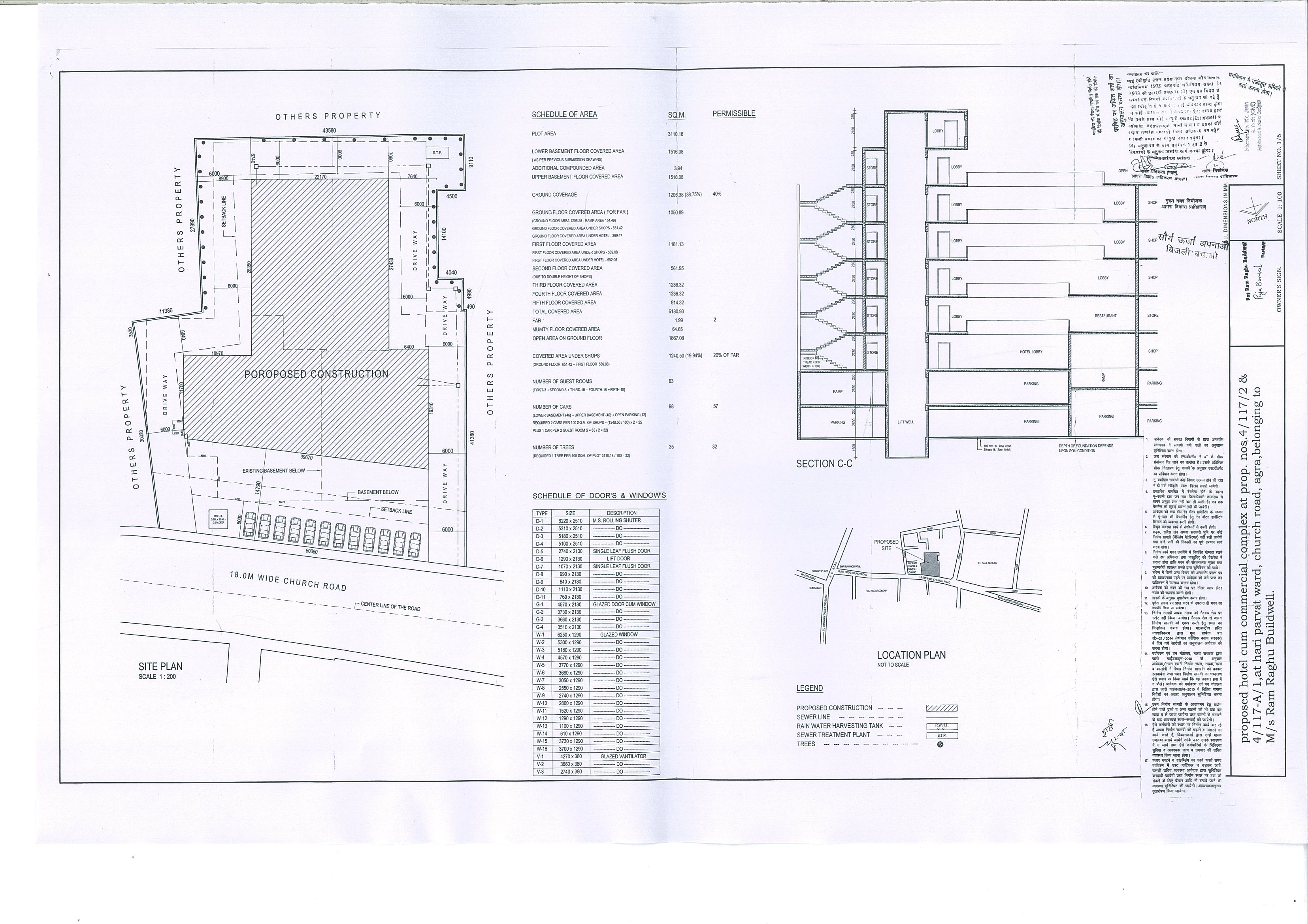
Ram Raghu Palazzo

Agra, Uttar Pradesh
01-03-2016
Launch Date
New
Type
28-10-2020
Completion Date

Overview

Launch Date

01-03-2016

Completion Date

28-10-2020

RERA ID

UPRERAPRJ7311

Basic Details

Project TypeNew
Project CategoryCommercial
Total area in round figure (Sq.mt.)3111
Project NameRam Raghu Palazzo
Registration Fee (in Rs.)42000
AddressNot specified
Village/Locality/Sector etc.Not specified
StateUttar Pradesh
Project Duration (In month)56
DistrictAgra
Original Start Date-
TehsilAgra
Proposed Start Date01-03-2016
Sanctioning Competent AuthorityAgra Development Authority
Project Cost (in Lacs)3000
Proposed Completion Date28-10-2020

Location

Latitude

27.202914

Longitude

78.001222

Bank Details

Account no.37088326697
Name Of Account HolderRAM RAGHU BUILDWELL A/C PALAZZO
Bank NameState Bank of India
Branch AddressCR Mall, Church Road, Agra - 282002
Branch NameHospital Road, Agra
IFSC CodeSBIN0030159

Development Works

Demarcation of Plots

No

Boundary Wall

Yes

Road Work

Yes

Footpaths

Yes

Water Supply Including Drinking Water Facilities

Yes

Sewer System

Yes

Drain

Yes

Parks

No

Tree Planting

Yes

Design For Electric Supply Including Street Lighting

Yes

Community Buildings

No

Treatment and Disposal System of Sewage and Sullage water

Yes

Solid Waste Management And Disposal System

Yes

Water Conservation System

Yes

Energy Management System Including Use of Renewable Energy

No

Fire Protection And Fire Safety System

Yes

Social Infrastructure And Other Public Amenities Including Public Health Services

Yes

Emergency Evacuation Services

Yes

Other Miscellaneous Work

No

Documents

Registry Document

No: IN-UP00352125848800M | Date: 02-05-2014

Proforma of Completion Certificate(Occupancy)

Proforma of Completion Certificate(Occupancy)

Details of Encumbrances

Uploaded: 31-07-2018

Commencement Certificate

Uploaded: 21-08-2018

Other Plan(If Any)

Uploaded: 31-07-2020

Proforma of Application Form

Uploaded: 31-07-2018

Proforma of Allotment Letter

Uploaded: 31-07-2018

Proforma of Conveyance Deed

Uploaded: 31-07-2018

Waste Disposal Plan

Uploaded: 21-08-2018

Water Supply Plan

Uploaded: 21-08-2018

Electricity Supply Plan

Uploaded: 21-08-2018

Development Work Plan

Uploaded: 21-08-2018

Affidavit

Uploaded: 19-08-2018

CA CERTIFICATE

Uploaded: 31-07-2018

ARCHITECT CERTIFICATE

Uploaded: 19-08-2018

ENGINEERS CERTIFICATE

Uploaded: 31-07-2018

Affidavit

Uploaded: 31-07-2017

Permits

Orignal Permit No297/BFH/11/14-15
Orignal Permit Date03-05-2017
Valid Upto02-05-2022
Revalidated Permit No-
Revalidated Permit Date-
Revalidated Permit Valid Upto-
Permit Extendable Upto02-05-2025
End Date29-10-2019
Uploaded Approve LayoutOpen
Uploaded Sanctioned LetterOpen
Uploaded Approved MapOpen
Uploaded Floor Plan Of All TypesOpen
Uploaded Project SpecificationsOpen
Uploaded Sajra DetailNot Specified

Project Team

Contractor Name (if any)Ram Raghu Traders & Contractors
Contractor AddressSuresh Plaza, M.G.Road, Agra
Architect NameC.S.Gupta
Architect Address33/2, Sanjay Place, Agra
Architect Licence NumberCA/75/475
Structural Engineer NameAkhil Goyal
Structural Engineer AddressSanjay Place, Agra.
Mobile number(Project Co-ordinator)9837094694

Land Details

AFS

Showing 1 blocks with 102 units

Property Summary

Total Carpet Area

4232.03 m²

45553.15 ft²

Total Units

103

2 different types

Blocks & Floors

1

9 floors across all blocks

Parking

0

0 garages, 0 open

Average unit size:41.09 m²
Balconies:0
Parking ratio:0.00 per unit

Block PALAZZO

102 units

Khasra Details

Total Area

3133.72 m²

33731.05 ft²

2 plots
Plot
TypePlot
Khasra/Plot No4/117/2, Church Road
Area(In Sq. Mt.)1000
Plot
TypePlot
Khasra/Plot No4/117/2, Church Road
Area(In Sq. Mt.)2133.72

Other Details

Contractor Name (if any)Ram Raghu Traders & Contractors
Contractor AddressSuresh Plaza, M.G.Road, Agra
Architect NameC.S.Gupta
Architect Address33/2, Sanjay Place, Agra
Architect Licence NumberCA/75/475
Structural Engineer NameAkhil Goyal
Structural Engineer AddressSanjay Place, Agra.
Mobile number(Project Co-ordinator)9837094694