OngoingActive

Ram Raghu Ananda

Agra, Uttar Pradesh
24-01-2014
Launch Date
Ongoing
Type
30-07-2019
Completion Date

Overview

Launch Date

Invalid Date

Completion Date

30-07-2019

RERA ID

UPRERAPRJ7221

Basic Details

Project TypeOngoing
Project CategoryResidential
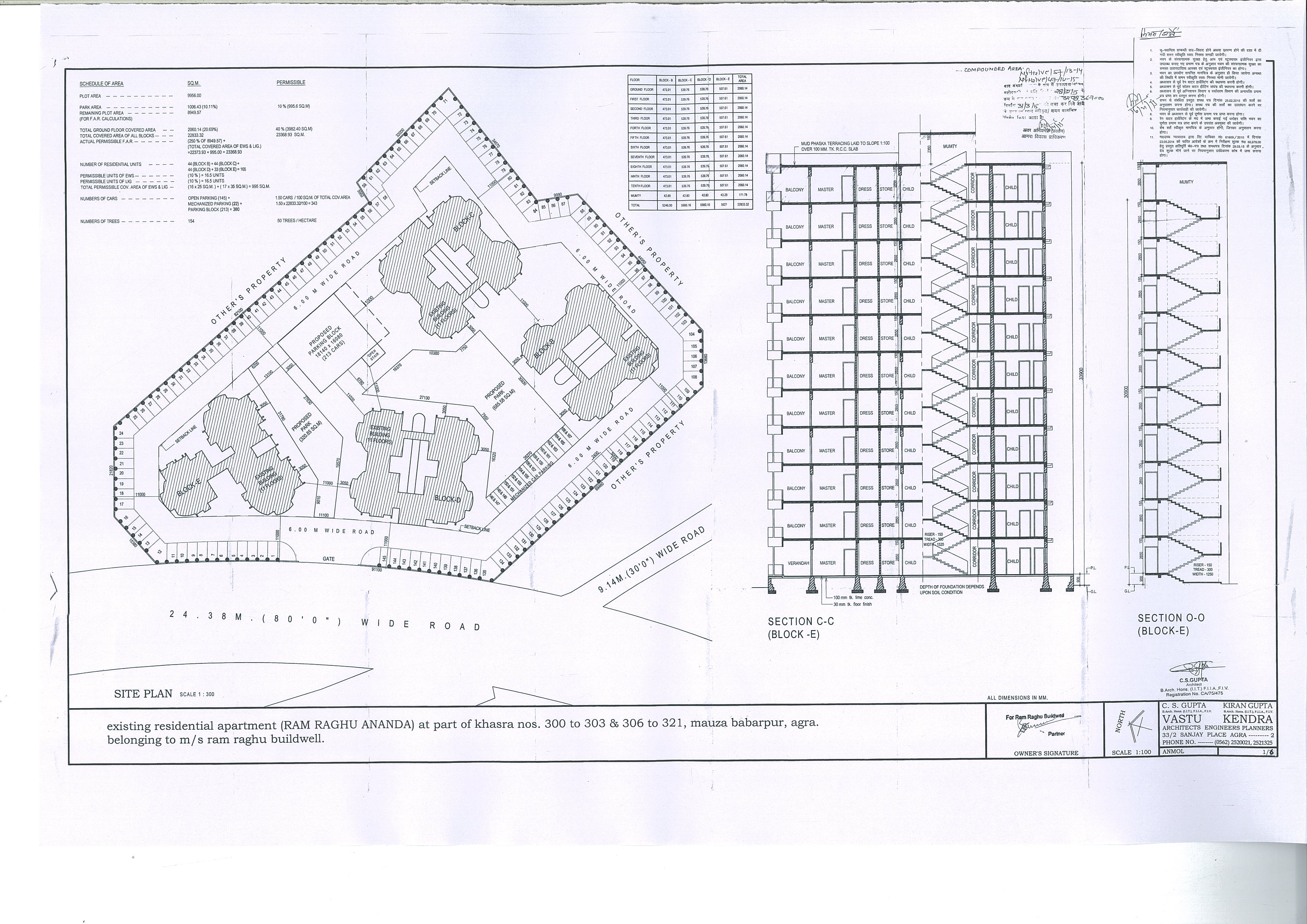
Total area in round figure (Sq.mt.)9956
Project NameRam Raghu Ananda
Registration Fee (in Rs.)55000
AddressNot specified
Village/Locality/Sector etc.Not specified
StateUttar Pradesh
Project Duration (In month)67
DistrictAgra
Original Start Date24-01-2014
TehsilAgra
Proposed Start Date24-01-2014
Sanctioning Competent AuthorityAgra Development Authority
Project Cost (in Lacs)3500
Proposed Completion Date30-07-2019

Location

Latitude

27.223644

Longitude

77.961817

Bank Details

Account no.37088326915
Name Of Account HolderRAM RAGHU BUILDWELL A/C ANANDA
Bank NameState Bank of India
Branch AddressCR Mall, Church Road, Agra - 282002
Branch NameHospital Road, Agra
IFSC CodeSBIN0030159

Development Works

Demarcation of Plots

No

Boundary Wall

Yes

Road Work

Yes

Footpaths

Yes

Water Supply Including Drinking Water Facilities

Yes

Sewer System

Yes

Drain

Yes

Parks

Yes

Tree Planting

Yes

Design For Electric Supply Including Street Lighting

Yes

Community Buildings

Yes

Treatment and Disposal System of Sewage and Sullage water

Yes

Solid Waste Management And Disposal System

Yes

Water Conservation System

Yes

Energy Management System Including Use of Renewable Energy

Solar Street Light

Fire Protection And Fire Safety System

Yes

Social Infrastructure And Other Public Amenities Including Public Health Services

Clubhouse

Emergency Evacuation Services

Open Staircase

Other Miscellaneous Work

Rain Water Harvesting

Documents

Registry Document

No: 5481 | Date: 28-09-2013

Other Plan(If Any)

Proforma of Completion Certificate(Occupancy)

ARCHITECT CERTIFICATE

Details of Encumbrances

Uploaded: 31-07-2018

Commencement Certificate

Uploaded: 31-07-2018

Proforma of Application Form

Uploaded: 31-07-2018

Proforma of Allotment Letter

Uploaded: 31-07-2018

Proforma of Conveyance Deed

Uploaded: 31-07-2018

Waste Disposal Plan

Uploaded: 21-08-2018

Water Supply Plan

Uploaded: 21-08-2018

Electricity Supply Plan

Uploaded: 21-08-2018

Development Work Plan

Uploaded: 21-08-2018

Affidavit

Uploaded: 31-07-2020

CA CERTIFICATE

Uploaded: 31-07-2018

ARCHITECT CERTIFICATE

Uploaded: 17-08-2018

ENGINEERS CERTIFICATE

Uploaded: 31-07-2018

Permits

Orignal Permit No1623/BFH/01/12-13
Orignal Permit Date18-01-2014
Valid Upto17-01-2019
Revalidated Permit No-
Revalidated Permit Date-
Revalidated Permit Valid Upto-
Permit Extendable Upto17-01-2022
End Date30-01-2019
Uploaded Approve LayoutOpen
Uploaded Sanctioned LetterOpen
Uploaded Approved MapOpen
Uploaded Floor Plan Of All TypesOpen
Uploaded Project SpecificationsOpen
Uploaded Sajra DetailNot Specified

Project Team

Contractor Name (if any)Indus Construction Services Pvt Ltd
Contractor AddressG8, Shanta Bazar, Sikandra Bodla Road, Agra.
Architect NameC.S.Gupta
Architect Address33/2, Sanjay Place, Agra
Architect Licence NumberCA/75/475
Structural Engineer NameAkhil Goyal
Structural Engineer AddressSanjay Place, Agra.
Mobile number(Project Co-ordinator)9837215186

Land Details

AFS

Showing 4 blocks with 56 units

Property Summary

Total Carpet Area

15488.22

166713.65 ft²

Total Units

165

3 different types

Blocks & Floors

4

14 floors across all blocks

Parking

0

0 garages, 0 open

Average unit size:93.87
Balconies:176
Parking ratio:0.00 per unit

Block TOWER B

14 units

Block TOWER C

14 units

Block TOWER D

14 units

Block TOWER E

14 units

Khasra Details

Total Area

9956.00

107165.39 ft²

1 plot
Khasra
TypeKhasra
Khasra/Plot NoPart of 300-303, 306-321
Area(In Sq. Mt.)9956

Other Details

Contractor Name (if any)Indus Construction Services Pvt Ltd
Contractor AddressG8, Shanta Bazar, Sikandra Bodla Road, Agra.
Architect NameC.S.Gupta
Architect Address33/2, Sanjay Place, Agra
Architect Licence NumberCA/75/475
Structural Engineer NameAkhil Goyal
Structural Engineer AddressSanjay Place, Agra.
Mobile number(Project Co-ordinator)9837215186