OngoingActive

NAGAR NIGAM SKY TOWER

Aligarh, Uttar Pradesh
01-07-2015
Launch Date
Ongoing
Type
16-07-2023
Completion Date

Overview

Launch Date

01-07-2015

Completion Date

16-07-2023

RERA ID

UPRERAPRJ10020

Basic Details

Project TypeOngoing
Project CategoryResidential
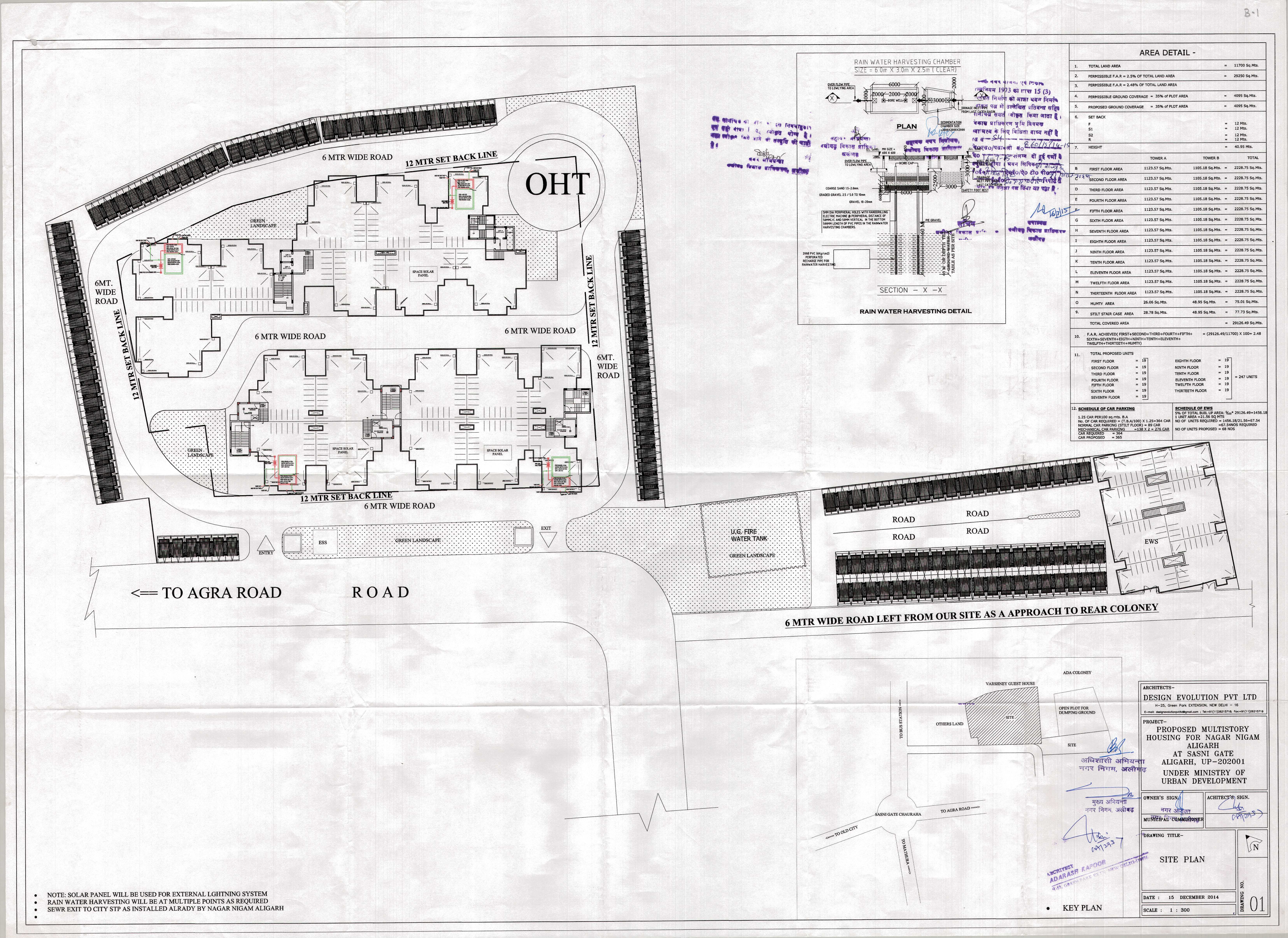
Total area in round figure (Sq.mt.)11700
Project NameNAGAR NIGAM SKY TOWER
Registration Fee (in Rs.)63500
AddressNot specified
Village/Locality/Sector etc.Not specified
StateUttar Pradesh
Project Duration (In month)97
DistrictAligarh
Original Start Date01-07-2015
TehsilKoil
Proposed Start Date01-07-2015
Sanctioning Competent AuthorityAligarh Development Authority
Project Cost (in Lacs)4700
Proposed Completion Date16-07-2023

Location

Latitude

27.869083

Longitude

78.07325

Bank Details

Account no.1469214000038
Name Of Account HolderKUSHAGR INFRA DEVELOPERS PVT LTD ESCROW ACCOUNT
Bank NameCANARA BANK
Branch AddressKAMLA NAGAR AGRA
Branch NameKAMLA NAGAR
IFSC CodeCNRB0001469

Development Works

Demarcation of Plots

PLOT IS DEMARCATED AS PER GIVEN DRAWING

Boundary Wall

BOUNDARY WALL 7 FEET HEIGHT IN BRICKWORK

Road Work

INTERLOCKING TILES

Footpaths

INTERLOCKING TILES

Water Supply Including Drinking Water Facilities

SUPPLY BY NAGAR NIGAM

Sewer System

SEWAR LINE AVAILABLE

Drain

BRICK WORK DRAIN

Parks

WELL MAINTAINED GREEN AREA

Tree Planting

DECORATIVE PLANT AND TREES ALONG THE BOUNDARY

Design For Electric Supply Including Street Lighting

POWER SUPPLY THROUGH DVVNL ,AN ADDITIONAL POWER BACKUP THROUGH GENSET/ LED LIGHTING

Community Buildings

NA

Treatment and Disposal System of Sewage and Sullage water

GOVERNMENT SEWERAGE SYSTEM

Solid Waste Management And Disposal System

NA

Water Conservation System

RAIN WATER HARVESTING

Energy Management System Including Use of Renewable Energy

LED LIGHTING WITH SOLAR PANELS WHEREVER FEASIBLE

Fire Protection And Fire Safety System

ACCORDING TO FIRE SAFETY NORMS

Social Infrastructure And Other Public Amenities Including Public Health Services

CHILDERN PLAY AREA AND GREEN AREA

Emergency Evacuation Services

EMERGENCY STAIRCASE

Other Miscellaneous Work

NA

Documents

Allotment Letter issued by Competent Authority

No: 799/S.V./N.N.A/2020-21 | Date: 27-07-2020

Details of Encumbrances

Proforma of Completion Certificate(Occupancy)

Waste Disposal Plan

Electricity Supply Plan

Development Work Plan

Commencement Certificate

Uploaded: 06-07-2018

Other Plan(If Any)

Uploaded: 06-07-2018

Proforma of Application Form

Uploaded: 06-07-2018

Proforma of Allotment Letter

Uploaded: 06-07-2018

Proforma of Conveyance Deed

Uploaded: 06-07-2018

Water Supply Plan

Uploaded: 06-07-2018

Affidavit

Uploaded: 06-07-2018

CA CERTIFICATE

Uploaded: 06-07-2018

ARCHITECT CERTIFICATE

Uploaded: 06-07-2018

ENGINEERS CERTIFICATE

Uploaded: 06-07-2018

Legal Document of Agreement in Case of other Land

Uploaded: 12-08-2017

Sanctioned Layout Plan (Of Entire Project)

Uploaded: 12-08-2017

Sanctioned Building/ Block Plan (Add Plans for All Buildings or Blocks)

Uploaded: 12-08-2017

Sanctioned Building/ Block Plan (Add Plans for All Buildings or Blocks)

Uploaded: 12-08-2017

Other Plan(If Any)

Uploaded: 12-08-2017

Other Plan(If Any)

Uploaded: 12-08-2017

Water Supply Plan

Uploaded: 12-08-2017

Authentic copy of Approval of Project

Uploaded: 12-08-2017

Affidavit

Uploaded: 12-08-2017

Permits

Orignal Permit No860/15/14-15/ADA
Orignal Permit Date17-07-2015
Valid Upto17-07-2020
Revalidated Permit No-
Revalidated Permit Date-
Revalidated Permit Valid Upto-
Permit Extendable Upto16-07-2023
End Date16-07-2023
Uploaded Approve LayoutOpen
Uploaded Sanctioned LetterOpen
Uploaded Approved MapOpen
Uploaded Floor Plan Of All TypesOpen
Uploaded Project SpecificationsOpen
Uploaded Sajra DetailNot Specified
Orignal Permit No860/15/14-15/ADA
Orignal Permit Date17-07-2015
Valid Upto16-07-2020
Revalidated Permit No860/15/14-15/ada/2020
Revalidated Permit Date05-10-2020
Revalidated Permit Valid Upto16-07-2023
Permit Extendable Upto16-07-2023
End Date16-07-2023
Uploaded Approve LayoutOpen
Uploaded Sanctioned LetterOpen
Uploaded Approved MapOpen
Uploaded Floor Plan Of All TypesOpen
Uploaded Project SpecificationsOpen
Uploaded Sajra DetailNot Specified

Project Team

Contractor Name (if any)SELF
Contractor AddressSANJAY PLACE AGRA
Architect NamePIYUSH AGARWAL
Architect AddressH-25 2ND FLOOR GREEN PARK EXTENSION NEW DELHI-16
Architect Licence NumberCA/2009/46059
Structural Engineer NamePARESH JAUHRI
Structural Engineer Address20 CENTRAL LANE BABAR ROAD NEW DELHI-01
Mobile number(Project Co-ordinator)AYUSH AGARWAL

Land Details

AFS

Showing 2 blocks with 85 units

Property Summary

Total Carpet Area

22185.24 m²

238799.70 ft²

Total Units

242

4 different types

Blocks & Floors

2

17 floors across all blocks

Parking

0

0 garages, 0 open

Average unit size:91.67 m²
Balconies:269
Parking ratio:0.00 per unit

Block TOWER A

55 units

Block TOWER B

30 units

Khasra Details

Total Area

11700.00 m²

125937.63 ft²

1 plot
Khasra
TypeKhasra
Khasra/Plot No2328,2329,2342
Area(In Sq. Mt.)11700

Other Details

Contractor Name (if any)SELF
Contractor AddressSANJAY PLACE AGRA
Architect NamePIYUSH AGARWAL
Architect AddressH-25 2ND FLOOR GREEN PARK EXTENSION NEW DELHI-16
Architect Licence NumberCA/2009/46059
Structural Engineer NamePARESH JAUHRI
Structural Engineer Address20 CENTRAL LANE BABAR ROAD NEW DELHI-01
Mobile number(Project Co-ordinator)AYUSH AGARWAL