OngoingActive

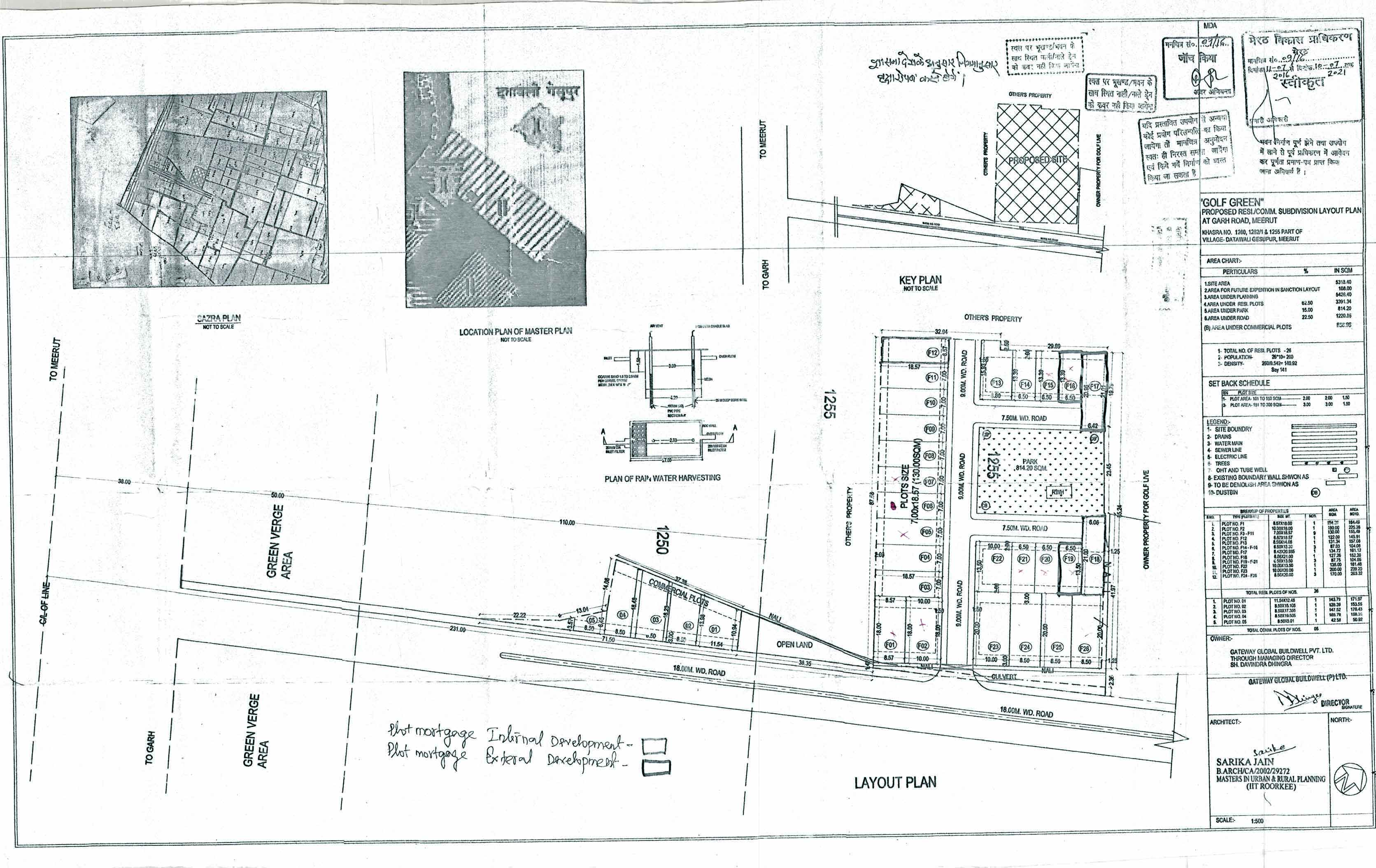
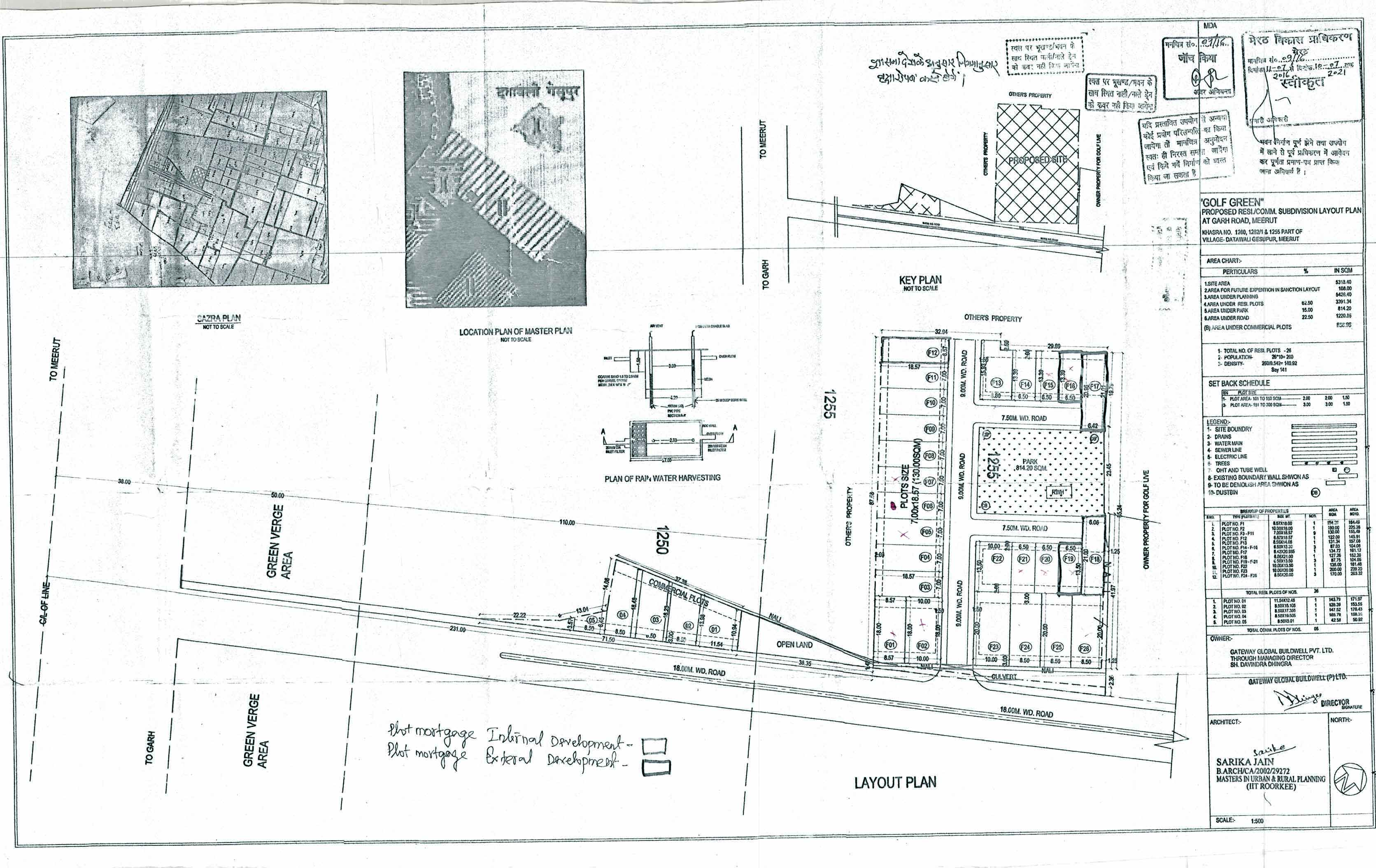
Golf Green

Meerut, Uttar Pradesh
11-07-2016
RERA Received Date
Ongoing
Type
09-01-2022
Completion Date

Overview

RERA Received Date

11-07-2016

Completion Date

09-01-2022

RERA ID

UPRERAPRJ5930

Location

Latitude

28.942248

Longitude

77.777078

Basic Details

Project TypeOngoing
Project CategoryResidential
Total area in round figure (Sq.mt.)6085
Project NameGolf Green
Registration Fee (in Rs.)35500
AddressNot specified
Village/Locality/Sector etc.Not specified
StateUttar Pradesh
Project Duration (In month)66
DistrictMeerut
Original Start Date11-07-2016
TehsilMeerut
Proposed Start Date11-07-2016
Sanctioning Competent AuthorityMeerut Development Authority
Project Cost (in Lacs)0
Proposed Completion Date09-01-2022

Bank Details

Account no.0000035300613847
Name Of Account HolderOD
Bank NameState Bank Of India
Branch AddressWazirpur Ind.Estate New Delhi
Branch NameWazirpur Ind.Estate New Delhi
IFSC CodeSBIN0005714

Development Works

Demarcation of Plots

COMPLETE AS PER DRAWINGS

Boundary Wall

95% COMPLETE AS PER DRAWINGS

Road Work

COMPLETE AS PER DRAWINGS

Footpaths

COMPLETE AS PER DRAWINGS

Water Supply Including Drinking Water Facilities

COMPLETE AS PER DRAWINGS

Sewer System

COMPLETE AS PER DRAWINGS

Drain

COMPLETE AS PER DRAWINGS

Parks

COMPLETE AS PER DRAWINGS

Tree Planting

COMPLETE AS PER DRAWINGS

Design For Electric Supply Including Street Lighting

COMPLETE AS PER DRAWINGS

Community Buildings

WORK UNDER PROGRESS

Treatment and Disposal System of Sewage and Sullage water

WORK UNDER PROGRESS 75% COMPLETE

Solid Waste Management And Disposal System

WORK UNDER PROGRESS

Water Conservation System

COMPLETE AS PER DRAWINGS

Energy Management System Including Use of Renewable Energy

WORK UNDER PROGRESS

Fire Protection And Fire Safety System

OUR PROJECT IS RESIDENTIAL PLOTTED DEVELOPMENT OF LAND

Social Infrastructure And Other Public Amenities Including Public Health Services

COMPLETE AS PER DRAWINGS

Emergency Evacuation Services

PROJECT IS RESIDENTIAL PLOTTED DEVELOPMENT OF LAND DEVELOPED AS PER APPROVED MDA DRAWINGS

Other Miscellaneous Work

COMPLETE AS PER DRAWINGS

Documents

Registry Document

No: 1012 | Date: 01-02-2016

Registry Document

No: 1012 | Date: 01-02-2016

Registry Document

No: 5000 | Date: 30-05-2014

Registry Document

No: 5000 | Date: 30-05-2014

Registry Document

No: 2319 | Date: 12-03-2012

Registry Document

No: 2319 | Date: 12-03-2012

Water Supply Plan

Uploaded: 30-07-2017

Registry Document In Case of Own Land

Uploaded: 30-07-2017

Registry Document In Case of Own Land

Uploaded: 30-07-2017

Affidavit

Uploaded: 30-07-2017

Registry Document In Case of Own Land

Uploaded: 30-07-2017

Registry Document In Case of Own Land

Uploaded: 30-07-2017

Registry Document In Case of Own Land

Uploaded: 30-07-2017

Registry Document In Case of Own Land

Uploaded: 30-07-2017

Registry Document In Case of Own Land

Uploaded: 30-07-2017

Registry Document In Case of Own Land

Uploaded: 30-07-2017

Registry Document In Case of Own Land

Uploaded: 30-07-2017

Registry Document In Case of Own Land

Uploaded: 30-07-2017

Registry Document In Case of Own Land

Uploaded: 30-07-2017

Registry Document In Case of Own Land

Uploaded: 30-07-2017

Registry Document In Case of Own Land

Uploaded: 30-07-2017

Registry Document In Case of Own Land

Uploaded: 30-07-2017

Registry Document In Case of Own Land

Uploaded: 30-07-2017

Registry Document In Case of Own Land

Uploaded: 30-07-2017

Registry Document In Case of Own Land

Uploaded: 30-07-2017

Registry Document In Case of Own Land

Uploaded: 30-07-2017

Registry Document In Case of Own Land

Uploaded: 30-07-2017

Registry Document In Case of Own Land

Uploaded: 30-07-2017

Registry Document In Case of Own Land

Uploaded: 30-07-2017

Registry Document In Case of Own Land

Uploaded: 30-07-2017

Registry Document In Case of Own Land

Uploaded: 30-07-2017

Registry Document In Case of Own Land

Uploaded: 30-07-2017

Registry Document In Case of Own Land

Uploaded: 30-07-2017

Registry Document In Case of Own Land

Uploaded: 30-07-2017

Registry Document In Case of Own Land

Uploaded: 30-07-2017

Registry Document In Case of Own Land

Uploaded: 30-07-2017

Registry Document In Case of Own Land

Uploaded: 30-07-2017

Registry Document In Case of Own Land

Uploaded: 30-07-2017

Registry Document In Case of Own Land

Uploaded: 30-07-2017

Registry Document In Case of Own Land

Uploaded: 30-07-2017

Registry Document In Case of Own Land

Uploaded: 30-07-2017

Registry Document In Case of Own Land

Uploaded: 30-07-2017

Registry Document In Case of Own Land

Uploaded: 30-07-2017

Registry Document In Case of Own Land

Uploaded: 30-07-2017

Registry Document In Case of Own Land

Uploaded: 30-07-2017

Registry Document In Case of Own Land

Uploaded: 30-07-2017

Registry Document In Case of Own Land

Uploaded: 30-07-2017

Registry Document In Case of Own Land

Uploaded: 30-07-2017

Registry Document In Case of Own Land

Uploaded: 30-07-2017

Registry Document In Case of Own Land

Uploaded: 30-07-2017

Registry Document In Case of Own Land

Uploaded: 30-07-2017

Registry Document In Case of Own Land

Uploaded: 30-07-2017

Registry Document In Case of Own Land

Uploaded: 30-07-2017

Registry Document In Case of Own Land

Uploaded: 30-07-2017

Registry Document In Case of Own Land

Uploaded: 30-07-2017

Registry Document In Case of Own Land

Uploaded: 30-07-2017

Registry Document In Case of Own Land

Uploaded: 30-07-2017

Registry Document In Case of Own Land

Uploaded: 30-07-2017

Permits

Orignal Permit No09/16
Orignal Permit Date11-07-2016
Valid Upto10-07-2021
Revalidated Permit No-
Revalidated Permit Date-
Revalidated Permit Valid Upto-
Permit Extendable Upto10-07-2021
End Date10-07-2021
Uploaded Approve LayoutOpen
Uploaded Sanctioned LetterOpen
Uploaded Approved MapOpen
Uploaded Floor Plan Of All TypesNot Specified
Uploaded Project SpecificationsOpen
Uploaded Sajra DetailNot Specified
Orignal Permit No09/16
Orignal Permit Date11-07-2016
Valid Upto10-07-2021
Revalidated Permit No-
Revalidated Permit Date-
Revalidated Permit Valid Upto-
Permit Extendable Upto10-07-2021
End Date10-07-2021
Uploaded Approve LayoutOpen
Uploaded Sanctioned LetterOpen
Uploaded Approved MapOpen
Uploaded Floor Plan Of All TypesNot Specified
Uploaded Project SpecificationsOpen
Uploaded Sajra DetailNot Specified
Orignal Permit No09/16
Orignal Permit Date11-07-2016
Valid Upto10-07-2021
Revalidated Permit No09/16
Revalidated Permit Date11-07-2016
Revalidated Permit Valid Upto10-07-2021
Permit Extendable Upto10-07-2021
End Date10-07-2021
Uploaded Approve LayoutOpen
Uploaded Sanctioned LetterOpen
Uploaded Approved MapOpen
Uploaded Floor Plan Of All TypesNot Specified
Uploaded Project SpecificationsOpen
Uploaded Sajra DetailNot Specified
Orignal Permit No09/16
Orignal Permit Date11-07-2016
Valid Upto10-07-2021
Revalidated Permit No09/16
Revalidated Permit Date11-07-2016
Revalidated Permit Valid Upto10-07-2021
Permit Extendable Upto10-07-2021
End Date10-07-2021
Uploaded Approve LayoutOpen
Uploaded Sanctioned LetterOpen
Uploaded Approved MapOpen
Uploaded Floor Plan Of All TypesNot Specified
Uploaded Project SpecificationsOpen
Uploaded Sajra DetailNot Specified
Orignal Permit No09/16
Orignal Permit Date11-07-2016
Valid Upto10-07-2021
Revalidated Permit No09/16
Revalidated Permit Date11-07-2016
Revalidated Permit Valid Upto10-07-2021
Permit Extendable Upto10-07-2021
End Date10-07-2021
Uploaded Approve LayoutOpen
Uploaded Sanctioned LetterOpen
Uploaded Approved MapOpen
Uploaded Floor Plan Of All TypesNot Specified
Uploaded Project SpecificationsOpen
Uploaded Sajra DetailNot Specified
Orignal Permit No09/16
Orignal Permit Date11-07-2016
Valid Upto10-07-2021
Revalidated Permit No09/16
Revalidated Permit Date11-07-2016
Revalidated Permit Valid Upto10-07-2021
Permit Extendable Upto10-07-2021
End Date10-07-2021
Uploaded Approve LayoutOpen
Uploaded Sanctioned LetterOpen
Uploaded Approved MapOpen
Uploaded Floor Plan Of All TypesNot Specified
Uploaded Project SpecificationsOpen
Uploaded Sajra DetailNot Specified

Project Team

Contractor Name (if any)N.A
Contractor AddressNot specified
Architect NameSarika Jain
Architect AddressMansarovar,Meerut
Architect Licence NumberB.ARCH/2002/29272
Structural Engineer NameN.A
Structural Engineer AddressN.A
Mobile number(Project Co-ordinator)9412578107

Land Details

Plot

Showing 1 blocks with 3 units

Property Summary

Total Carpet Area

0.00

0.00 ft²

Total Units

0

1 different types

Blocks & Floors

1

1 floors across all blocks

Parking

0

0 garages, 0 open

Average unit size:NaN
Balconies:0
Parking ratio:NaN per unit

Block undefined

3 units

Khasra Details

Total Area

6085.36

65502.21 ft²

3 plots
Khasra
TypeKhasra
Khasra/Plot No1255
Area(In Sq. Mt.)5318.40
Khasra
TypeKhasra
Khasra/Plot No1262/1
Area(In Sq. Mt.)108
Khasra
TypeKhasra
Khasra/Plot No1260
Area(In Sq. Mt.)658.96

Other Details

Contractor Name (if any)N.A
Contractor AddressNot specified
Architect NameSarika Jain
Architect AddressMansarovar,Meerut
Architect Licence NumberB.ARCH/2002/29272
Structural Engineer NameN.A
Structural Engineer AddressN.A
Mobile number(Project Co-ordinator)9412578107
Golf Green by DEVENDRA DHINGRA | ReraTracker