NewActive

Garden Bay High Street

Lucknow, Uttar Pradesh
20-12-2019
Launch Date
New
Type
31-03-2021
Completion Date

Overview

Launch Date

Invalid Date

Completion Date

31-03-2021

RERA ID

UPRERAPRJ173616

Basic Details

Project TypeNew
Project CategoryCommercial
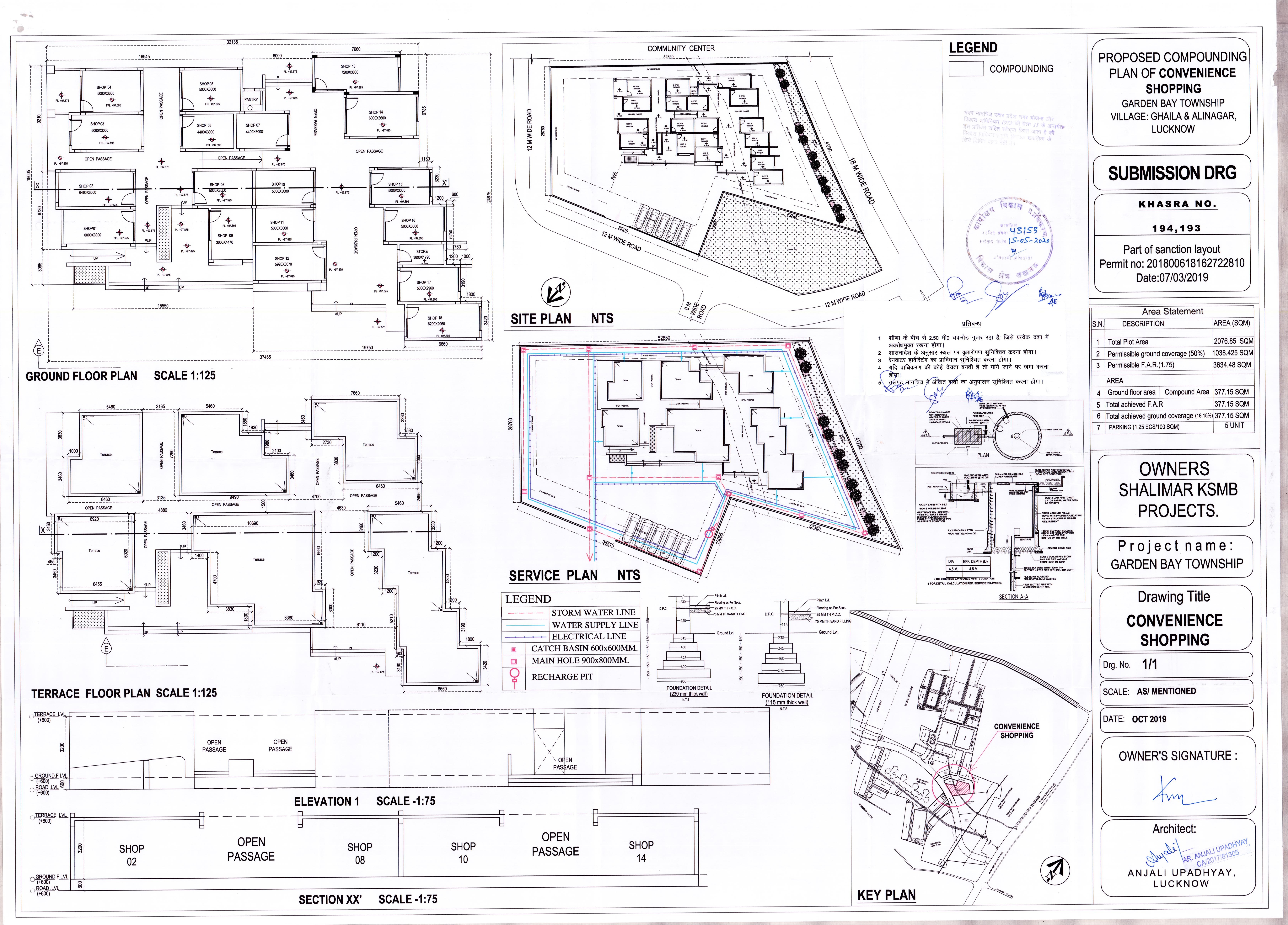
Total area in round figure (Sq.mt.)2077
Project NameGarden Bay High Street
Registration Fee (in Rs.)31000
AddressNot specified
Village/Locality/Sector etc.Not specified
StateUttar Pradesh
Project Duration (In month)16
DistrictLucknow
Original Start Date-
TehsilLucknow
Proposed Start Date20-12-2019
Sanctioning Competent AuthorityLucknow Development Authority
Project Cost (in Lacs)380
Proposed Completion Date31-03-2021

Location

Latitude

26.921111

Longitude

80.885278

Bank Details

Account no.06871652000079
Name Of Account HolderShalimar KSMB Projects
Bank NameOriental Bank of Commerce
Branch AddressVivek Khand,Gomti Nagar, Lucknow
Branch NameVivek Khand,Gomti Nagar
IFSC CodeORBC0100687

Development Works

Demarcation of Plots

This is single plot polygon shaped , having total 1 no. of entry gate and 1no. of exit gate from the 18m wide front road and 12m internal road, Site is surronded by other plots of developer.

Boundary Wall

3.0 - 3.6m high and 200 mm thick Boundary wall designed . Brick Work of 9inches and rcc work in column and beam may be used as per design. MS Broad entrance and exit gates are developed with boundary.

Road Work

Concerete Bitumin Road with bituminous Cover/ High quality concrete pavers will be used as per deisgn suggested by the Architect for internal road.

Footpaths

All internal roads will have narrow footpath cement stone pavers or equivalent finishes

Water Supply Including Drinking Water Facilities

NA

Sewer System

Centralized Sewerage system shall be Provided.

Drain

Storm water system shall be Provided. Storm water from Roads and other lanscape area shall be connect to the Storm water drain channel and go to the Rain water harvesting Pit for recharge the Ground water and overflow shall be connect with Municiple drain line.

Parks

NA

Tree Planting

NA

Design For Electric Supply Including Street Lighting

We have designed the system as per local electricity Board and consider centralized Transformer,HT panel,LT Panel,Feeder Pillar and DG back for common service like External lighting,STP,Pump room etc.

Community Buildings

NA

Treatment and Disposal System of Sewage and Sullage water

NA

Solid Waste Management And Disposal System

Garbage collection area provided for the solid waste management.

Water Conservation System

A well designed rain water harvesting system shall be provided for the whole complex to conserve water.

Energy Management System Including Use of Renewable Energy

Renewable Energy and enegery management sytem to be followed as per guideline.

Fire Protection And Fire Safety System

All required safety norms shall be followed.

Social Infrastructure And Other Public Amenities Including Public Health Services

NA

Emergency Evacuation Services

NA

Other Miscellaneous Work

NA

Documents

Sale Deed

No: 1315 | Date: 07-02-2007

Sale Deed

No: 8521 | Date: 11-09-2006

Sale Deed

No: 8263 | Date: 04-09-2006

Registry Document

No: 410 | Date: 11-08-2014

Extract of Khatauni

No: Reply against objections | Date: -

Proforma of Completion Certificate(Occupancy)

CA CERTIFICATE

Details of Encumbrances

Uploaded: 02-08-2020

Commencement Certificate

Uploaded: 02-08-2020

Other Plan(If Any)

Uploaded: 02-08-2020

Proforma of Application Form

Uploaded: 02-08-2020

Proforma of Allotment Letter

Uploaded: 02-08-2020

Proforma of Conveyance Deed

Uploaded: 02-08-2020

Waste Disposal Plan

Uploaded: 02-08-2020

Water Supply Plan

Uploaded: 31-08-2020

Electricity Supply Plan

Uploaded: 31-08-2020

Development Work Plan

Uploaded: 02-08-2020

Affidavit

Uploaded: 02-08-2020

ARCHITECT CERTIFICATE

Uploaded: 02-08-2020

ENGINEERS CERTIFICATE

Uploaded: 02-08-2020

Permits

Orignal Permit No43153
Orignal Permit Date15-05-2020
Valid Upto14-05-2025
Revalidated Permit No-
Revalidated Permit Date-
Revalidated Permit Valid Upto-
Permit Extendable Upto14-05-2028
End Date31-03-2021
Uploaded Approve LayoutOpen
Uploaded Sanctioned LetterOpen
Uploaded Approved MapOpen
Uploaded Floor Plan Of All TypesOpen
Uploaded Project SpecificationsOpen
Uploaded Sajra DetailNot Specified

Project Team

Contractor Name (if any)S.A.Construction
Contractor Address"D-2/46-47, Shyama Shiv Square 2nd Floor, Vibhuti Khand Gomti Nagar,Lucknow - 226010"
Architect Name42 MM Architecture
Architect AddressD-102 Chhatarpur, New Delhi-110074
Architect Licence Number CA/2011/53000
Structural Engineer NameDeepak Kumar
Structural Engineer Address"Vibhuti Khand Gomti Nagar, Lucknow-226010 "
Mobile number(Project Co-ordinator)9889820823

Land Details

AFS

Showing 19 blocks with 19 units

Property Summary

Total Carpet Area

309.56

3332.07 ft²

Total Units

19

2 different types

Blocks & Floors

19

1 floors across all blocks

Parking

0

0 garages, 0 open

Average unit size:16.29
Balconies:0
Parking ratio:0.00 per unit

Block Shop 01

1 units

Block Shop 02

1 units

Block Shop 03

1 units

Block Shop 04

1 units

Block Shop 05

1 units

Block Shop 06

1 units

Block Shop 07

1 units

Block Shop 08

1 units

Block Shop 09

1 units

Block Shop 10

1 units

Block Shop 11

1 units

Block Shop 12

1 units

Block Shop 13

1 units

Block Shop 14

1 units

Block Shop 15

1 units

Block Shop 16

1 units

Block Shop 17

1 units

Block Shop 18

1 units

Block ATM

1 units

Khasra Details

Total Area

2076.85

22355.01 ft²

1 plot
Khasra
TypeKhasra
Khasra/Plot NoPart of Khasra no 193 & 194, Ghaila and Ali Nagar
Area(In Sq. Mt.)2076.85

Other Details

Contractor Name (if any)S.A.Construction
Contractor Address"D-2/46-47, Shyama Shiv Square 2nd Floor, Vibhuti Khand Gomti Nagar,Lucknow - 226010"
Architect Name42 MM Architecture
Architect AddressD-102 Chhatarpur, New Delhi-110074
Architect Licence Number CA/2011/53000
Structural Engineer NameDeepak Kumar
Structural Engineer Address"Vibhuti Khand Gomti Nagar, Lucknow-226010 "
Mobile number(Project Co-ordinator)9889820823
Garden Bay High Street by M/S SHALIMAR KSMB PROJECTS | ReraTracker