NewActive

Apex Enclave

Meerut, Uttar Pradesh
22-02-2020
Launch Date
New
Type
21-04-2025
Completion Date

Overview

Launch Date

Invalid Date

Completion Date

21-04-2025

RERA ID

UPRERAPRJ745920

Basic Details

Project TypeNew
Project CategoryResidential
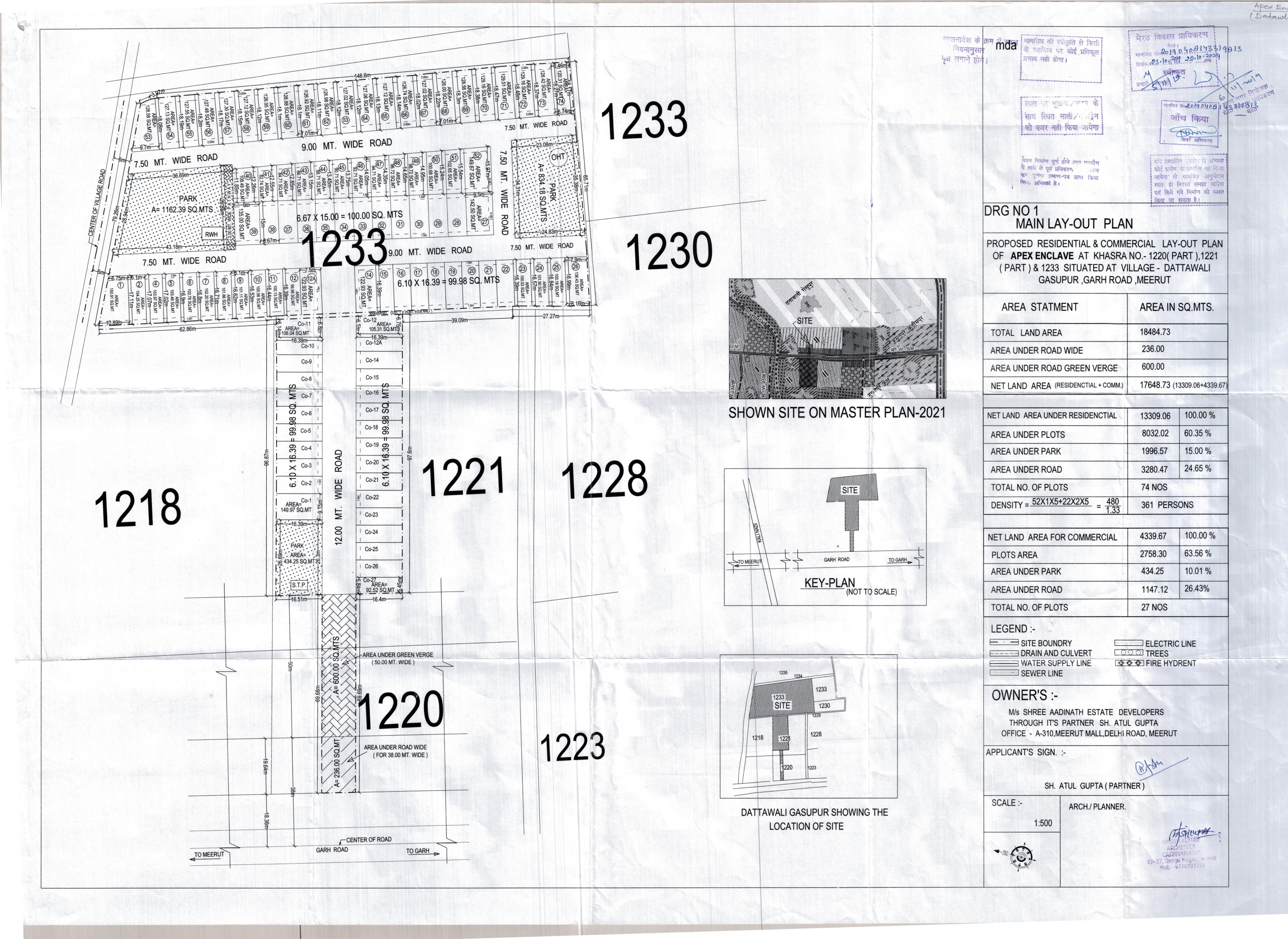
Total area in round figure (Sq.mt.)18484
Project NameApex Enclave
Registration Fee (in Rs.)97500
AddressNot specified
Village/Locality/Sector etc.Not specified
StateUttar Pradesh
Project Duration (In month)62
DistrictMeerut
Original Start Date-
TehsilMeerut
Proposed Start Date22-02-2020
Sanctioning Competent AuthorityMeerut Development Authority
Project Cost (in Lacs)1059
Proposed Completion Date21-04-2025

Location

Latitude

28'56’41”N

Longitude

77'46’22”E

Bank Details

Account no.91900036199531
Name Of Account HolderShree Aadinath Estate Developers
Bank NameAxis Bank Ltd.
Branch AddressDelhi Road, Meerut
Branch NameFootball Chowk
IFSC CodeUTIB0002931

Development Works

Demarcation of Plots

all plots will be marked on the boundary wall and top of the drain.

Boundary Wall

9 Inches thick brick work will be done in boundary wall with plaster and whitewash over it

Road Work

first coat will be of 4 inches thickness of 40 X 63 mm stone ballast, 3 inches thick 2nd coat of 25X50mm stone ballast and bituminus concrete from plant will be layed over 2nd coat.

Footpaths

Precast interlocking tiles will be layed over coarsent cuision.

Water Supply Including Drinking Water Facilities

Water will be supplied through overhead RCC Tank with underground PVC Line up to each and every plot.

Sewer System

Underground RCC Sewer line system and connecting main hole in brick work to each and every plot.

Drain

Open drain made of brick work with neat cement plaster over it.

Parks

Elevated parks with cement curve stone with light poles and plantation and swings for childerns.

Tree Planting

Tree plantation shall be done in parks and sides of main roads of the colony.

Design For Electric Supply Including Street Lighting

Electric supply shall be done by UPPVNL and payment will be made as per electric department estimate and LED street lights will be placed at every pole.

Community Buildings

Not applicable

Treatment and Disposal System of Sewage and Sullage water

Underground STP based on ever clean RCC hollow tanks (ERHT) system.

Solid Waste Management And Disposal System

Not Applicable

Water Conservation System

Underground rain water harvesting system will be constructed in brick work with RCC Slab as per Govt. Norms.

Energy Management System Including Use of Renewable Energy

Not Applicable

Fire Protection And Fire Safety System

Fire Hyderant shall be installed on the junctions of the colony.

Social Infrastructure And Other Public Amenities Including Public Health Services

Not Applicable

Emergency Evacuation Services

Not Applicable

Other Miscellaneous Work

Not Applicable

Documents

Sale Deed

No: 4791 | Date: 05-05-2006

Sale Deed

No: 4792 | Date: 05-05-2006

Sale Deed

No: 7324 | Date: 26-07-2006

Registry Document

No: Plaint | Date: 05-02-2019

Registry Document

No: WS | Date: 24-04-2019

Registry Document

No: Civil Judge Order | Date: 25-05-2019

Registry Document

No: Compromise & Decree | Date: 29-05-2019

Registry Document

No: Appeal Against Civil Judge Order | Date: 01-07-2019

Registry Document

No: Order of Appeal | Date: 18-12-2019

Registry Document

No: Decree | Date: 08-01-2020

Other Plan(If Any)

Proforma of Completion Certificate(Occupancy)

Affidavit

Details of Encumbrances

Uploaded: 07-03-2020

Commencement Certificate

Uploaded: 22-02-2020

Proforma of Application Form

Uploaded: 22-02-2020

Proforma of Allotment Letter

Uploaded: 22-02-2020

Proforma of Conveyance Deed

Uploaded: 22-02-2020

Waste Disposal Plan

Uploaded: 22-02-2020

Water Supply Plan

Uploaded: 22-02-2020

Electricity Supply Plan

Uploaded: 22-02-2020

Development Work Plan

Uploaded: 22-02-2020

Affidavit

Uploaded: 18-03-2020

CA CERTIFICATE

Uploaded: 22-02-2020

ARCHITECT CERTIFICATE

Uploaded: 22-02-2020

ENGINEERS CERTIFICATE

Uploaded: 22-02-2020

Permits

Orignal Permit NoMAP20190408143319813
Orignal Permit Date23-10-2019
Valid Upto22-10-2024
Revalidated Permit No-
Revalidated Permit Date-
Revalidated Permit Valid Upto-
Permit Extendable Upto22-10-2027
End Date22-10-2024
Uploaded Approve LayoutOpen
Uploaded Sanctioned LetterOpen
Uploaded Approved MapOpen
Uploaded Floor Plan Of All TypesNot Specified
Uploaded Project SpecificationsOpen
Uploaded Sajra DetailNot Specified

Project Team

Contractor Name (if any)Ashok Kumar
Contractor AddressH. No. 709, Gali No. 10, Phool Bagh Colony, Meerut
Architect NameUmesh Kumar
Architect AddressK P 37, Ganga Nagar, Meerut
Architect Licence NumberCA/2014/64945
Structural Engineer NameNot Applicable
Structural Engineer AddressNot Applicable
Mobile number(Project Co-ordinator)9837020957

Land Details

Plot

Showing 1 blocks with 3 units

Property Summary

Total Carpet Area

0.00

0.00 ft²

Total Units

0

1 different types

Blocks & Floors

1

1 floors across all blocks

Parking

0

0 garages, 0 open

Average unit size:NaN
Balconies:0
Parking ratio:NaN per unit

Block undefined

3 units

Khasra Details

Total Area

18484.73

198967.79 ft²

3 plots
Khasra
TypeKhasra
Khasra/Plot No1220
Area(In Sq. Mt.)636
Khasra
TypeKhasra
Khasra/Plot No1221
Area(In Sq. Mt.)4068.73
Khasra
TypeKhasra
Khasra/Plot No1233
Area(In Sq. Mt.)13780

Other Details

Contractor Name (if any)Ashok Kumar
Contractor AddressH. No. 709, Gali No. 10, Phool Bagh Colony, Meerut
Architect NameUmesh Kumar
Architect AddressK P 37, Ganga Nagar, Meerut
Architect Licence NumberCA/2014/64945
Structural Engineer NameNot Applicable
Structural Engineer AddressNot Applicable
Mobile number(Project Co-ordinator)9837020957